Locatie De Locht, Olland

Voortgang woningbouwontwikkeling De Locht en de Schutterij

3 december 2025

Hierbij vindt u de laatste informatie over de woningbouwontwikkelingen De Locht en de Schutterij. 

plankaart Locht-Olland

Plankaart van De Locht en de Schutterij

Locht en Schutterij

Kaart met Schutterij en De Locht

Ligging ontwikkelgebied Locht-Olland

Ligging van het ontwikkelgebied

Ontwerp omgevingsplan De Locht en de Schutterij ter inzage

Van 21 november 2025 tot en met 2 januari 2026 ligt het ontwerp-omgevingsplan voor de geplande woningbouw op  het voormalig sportveld in Olland ter inzage. De papieren versie kunt u inzien in het gemeentehuis (Stadhuisplein 1 te Veghel); u hoeft hiervoor geen afspraak te maken. Ook kunt u de stukken digitaal inzien. 

Programma woningbouwontwikkeling De Locht Olland

Programma woningbouwontwikkeling De Locht Olland
Bij nummer 1  ziet u Rijwoningen sociale huur (3 woningen) en koop (3 woningen)
Bij nummer 2 ziet u 2 hoekwoningen met garage en 5 rijwoningen
Bij nummer 3 ziet u 6 Rug-aanrugwoningen (sociale huurwoningen) 
In rood ziet u 2 geschakelde vrijstaandekoopwoningen

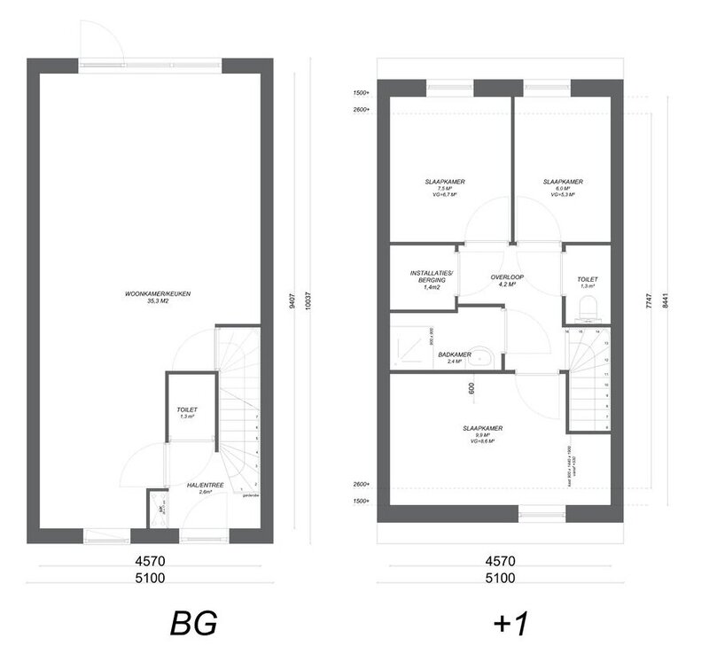
Impressie rijwoningen (huur en koop)

Impressie rijwoningen De Locht 

Locht-tussenwoninen2-ezgif.com-resize

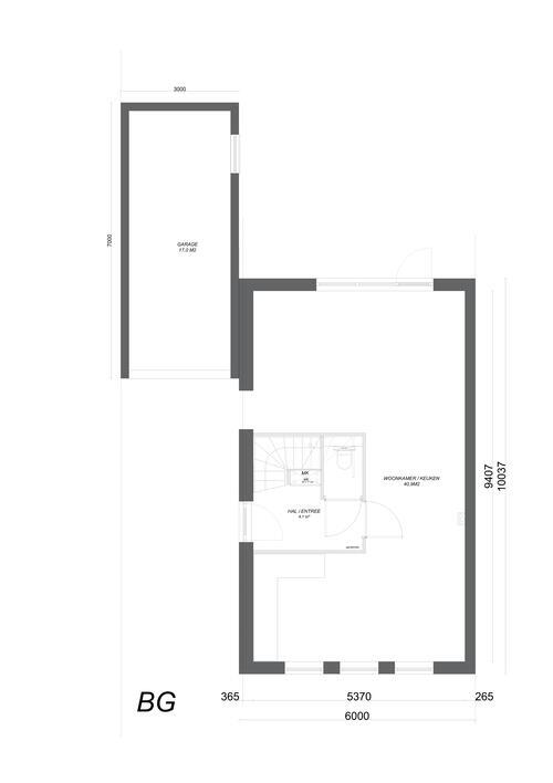
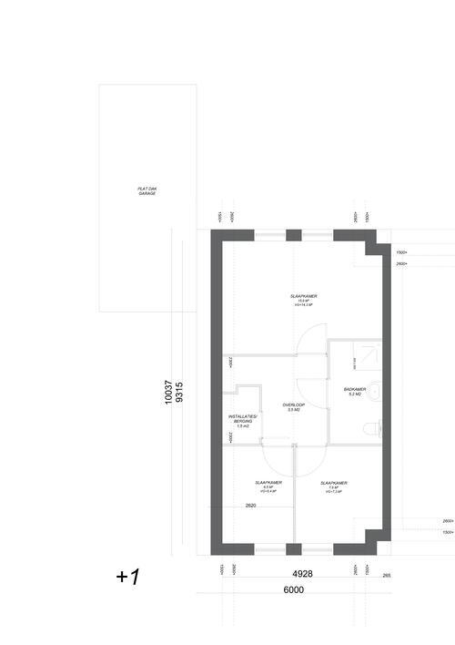
Impressie Rijwoningen en Hoekwoningen (koop)

Impressie Rijwoningen C & Hoekwoningen B 

Locht-hoekwon2BG-ezgif.com-resize Locht-hoekwon21everdieping-ezgif.com-resize

Impressie Rug-aan-rugwoningen (Sociale huur)

Impressie Rug-aan-rugwoningen De Locht

 LochtenSportveld-Soc.huurBG-ezgif.com-resize LochtenSportveld-Soc.huur1everdieping-ezgif.com-resize

Verslag inloopavond 1 december 2025

Op maandagavond 1 december 2025 is er een inloopavond voor bewoners van Olland geweest. Tijdens de avond zijn informatiepanelen getoond over het ontwerp van de locatie. De gemeente en woningbouwcorporatie Woonmeij waren aanwezig om vragen te beantwoorden. De belangrijkste vragen waren:

  1. Wat gaan de woningen kosten? 
    • De huurwoningen (Woonmeij): De precieze huurprijzen zijn nog niet bekend. Wel is bekend dat ze onder de huurgrens sociale huur komen te liggen. Die is (december 2025) € 900,07.
    • De koopwoningen: Daar kunnen we nu nog geen prijs voor afgeven. Wel uiteraard welke categorieën het worden (staat ook al op de posters). Het idee is om later, als dat aan de orde is, een informatie-dag of -avond te organiseren om de mensen te informeren.
  2. Wanneer kan ik me inschrijven? 
    • De huurwoningen (Woonmeij): inschrijven bij Thuispoort is al mogelijk (algemeen) en straks ook voorwaarde voor toekenning van een woning.
    • De koopwoningen: Dat is nog niet aan de orde.
  3. Kunnen mensen met een sociale binding / afkomstig uit het betreffende dorp zelf, voorrang krijgen?
    • De huurwoningen (Woonmeij): 50% van de woningen van het Sportveld zullen worden aangeboden met een lokale voorrangsregeling. De selectie vindt plaats op basis van reguliere inschrijftijd. Op het moment dat 50% niet gehaald wordt, wordt regulier verhuurd. Inschrijven als woningzoekende in Thuispoort is een voorwaarde. De koopwoningen: het is vooralsnog niet toegestaan ‘eigen’ inwoners voorrang te geven zolang de gemeente dit niet heeft vastgelegd in een Huisvestingsverordening (die heeft de gemeente nog niet). Conform een raadsmotie uit 2021 verzoeken we tezijnertijd de bouwers van de koopwoningen om de publicatie over de woningen eerst te plaatsen in de lokale kranten. Deze publicatie wordt minimaal één maand geplaatst voordat het project breder in de verkoop gaat.

Op woensdag 3 december is er een informatiemoment geweest over de juridische verwerking in het omgevingsplan voor deze woningbouw aan het voormalig sportveld in Boskant.  Het ontwerp omgevingsplan ligt nu ter inzage.

Ontwerp omgevingsplan De Locht en de Schutterij ter inzage

Van 21 november 2025 tot en met 2 januari 2026 ligt het ontwerp-omgevingsplan voor de geplande woningbouw De Locht en de Schutterij ter inzage. De papieren versie kunt u inzien in het gemeentehuis (Stadhuisplein 1 te Veghel); u hoeft hiervoor geen afspraak te maken. Ook kunt u de stukken digitaal inzien

Verslag participatieavond 8 april 2024 De Locht, Olland

1 Inleiding

1.1 Aanleiding

De gemeente Meierijstad wil samen met woningbouwcorporatie Woonmeij modulaire nieuwbouwwoningen realiseren aan de Locht in Olland. Het gaat om koopwoningen en sociale huurwoningen. De locatie ligt achter de bestaande woningen aan de Pastoor Smitsstraat, komt te liggen naar het nieuwbouwplan ‘Roest’, en wordt verder omsloten door het groene buitengebied van Olland. Het onverharde pas De Locht vormt de begrenzing aan de noordoostzijde.

Onderdeel van de voorbereiding is dat de gemeente in gesprek gaat met omwonenden (‘omgevingsdialoog'). De participatieavond die is gehouden op 8 april 2024 is hier onderdeel van. 

De bewoners van Olland zijn in november 2023 per brief ingelicht over het voornemen van de gemeente om op deze planlocatie woningen te realiseren. In maart zijn de bewoners van Olland, eveneens per brief (en via berichten in de nieuwsbrief van de Dorpsraad en de lokale krant geïnformeerd over deze avond in april.

1.2 Omgevingsdialoog

Een omgevingsdialoog is een dialoog tussen een initiatiefnemer en omwonenden en/of andere belanghebbenden van een ruimtelijk plan. Deze dialoog kan plaatsvinden in bijvoorbeeld een zaal, aan de keukentafel en/of online. Een participatieavond maakt deel uit van het totale proces van planvoorbereiding.

Met de omgevingsdialoog voor De Locht in Olland worden omwonenden geïnformeerd over de plannen van de gemeente Meierijstad, en krijgt de gemeente inzicht in de wensen, belangen en bezwaren van de omgeving. De gemeente kan deze betrekken in het verdere ontwerp van het plan.

Op 8 april 2024 heeft de eerste informatieavond plaatsgevonden. Tijdens deze informatie-avond is het plan toegelicht, en konden bezoekers verdiepende vragen persoonlijk stellen. Tijdens de avond waren zo’n 130 bezoekers aanwezig. 
Tijdens deze avond zijn met een digitale tool (Mentimeter) de eerste vragen aan de aanwezigen gesteld, en antwoorden gegeven en kort besproken. De resultaten van de Mentimeter zijn weergegeven in de bijlage.

Om belanghebbenden en belangstellenden verder goed te informeren en eenieder de kans te geven om in alle rust een mening te geven over het plan is ook gebruikgemaakt van een online participatietool (Maptionnaire) waarin het plan toegelicht is, meningen gedeeld konden worden en vragen konden worden gesteld. 

In dit verslag zijn de resultaten weergegeven van deze participatieronde.

2 Maptionnaire

2.1 Onderdelen vragenlijst participatietool

De vragenlijst in de participatietool was opgedeeld in een aantal delen:

•    Gegevens respondent

Aan respondenten is gevraagd wat hun postcode is en wat hun relatie is tot het plan (omwonende Dorpskern Olland, omwonende buitengebied Olland, of niet-wonend in Olland). De reacties zijn anoniem verwerkt in deze rapportage. 

•    Toelichting op het plan

Met downloadlink naar de presentatie van de informatieavond.

•    Mening over het plan

Hier konden respondenten een reactie geven op het plan door middel van het geven van een reactie op een plattegrond van het plan.

•    Afsluiting

Hier konden respondenten algemene opmerkingen en vragen delen. 
Tenslotte kon men aangeven als ze het verslag digitaal wilde ontvangen en kon met hun contactgegevens achterlaten. 

2.2 De respons

Tussen 8 april en 28 april 2024 konden respondenten de online omgevingsdialoog openen. De vragenlijst is beschikbaar geweest voor iedereen. De link heeft in de informatiebrief (uitgedeeld tijdens de participatieavond) en op de website van de gemeente Meierijstad gestaan. Ook is de link in de plaatselijke krant verschenen. In het totaal hebben 93 (verschillende) respondenten de digitale omgevingsdialoog bezocht. De vragenlijst heeft op verzoek van een respondent een week langer open gestaan. 

Respondenten is gevraagd welke relatie ze met het plan hadden. Deze vraag kon met meerdere antwoorden beantwoord worden: 

  • 75 respondenten wonen in het dorp Olland;
  • 12 respondenten wonen in het buitengebied van Olland;
  • 6 respondenten kwam van buiten Olland.

Niet iedereen die de site heeft bezocht, heeft de enquête ingevuld. 

Bij vragen kon men NieuwBlauw bellen of mailen. Eén respondent heeft hier gebruik van gemaakt. Deze respondent wilde graag meer tijd om de maptionnaire in te vullen. Nieuw-Blauw heeft na mailcontact de vragenlijst een week langer open laten staan. De respondent heeft hierna zijn reactie volledig kunnen achterlaten. Er zijn geen verzoeken ontvangen om de vragenlijst op papier te ontvangen.  

Tijdens de participatieavond zijn mondeling enkele vragen gesteld. Die zijn tijdens de avond beantwoord. Er zijn verder geen vragen achtergelaten op deze avond.  

3 Toelichting op het plan

Ligging en begrenzing

Het plangebied ligt aan de zuidoostkant van Olland. Aan de noordwestzijde wordt het gebied begrenst door de beoogde ontwikkeling Roest. Aan de oost- en zuidoostzijde ligt landbouwgrond. Aan de westzijde grenst het plangebied aan de achtertuinen van de woningen aan de Pastoor Smitsstraat. Het plangebied zal worden ontsloten via de Roest. 
Momenteel loopt nog overleg met de eigenaar van het perceel ten zuidwesten van het projectgebied, om te kijken of en hoe dat perceel (of een deel ervan) mee kan worden genomen in deze ontwikkeling. 

Concept stedenbouwkundig plan

Concept stedenbouwkundig plan (bron: NieuwBlauw)

Voor wie zijn de woningen bedoeld

In het ontwerp komen ongeveer voor de helft sociale huurwoningen en voor de andere helft koopwoningen. Zie de kaart voor welk type waar gepland is. De woningen zijn geschikt voor verschillende doelgroepen. De sociale huurwoningen zijn bedoeld voor reguliere woningzoekenden en vooral bedoeld voor de kleinere huishoudens: 1- en 2-persoons, vooral starters en senioren. 

Ontwerp van de woningen

De woningen worden één laag met kap, en krijgen een dorpse uitstraling. De hoekwoningen zijn wat groter. Alle woningen kijken uit op een groene omgeving. De woningen staan midden in een parkachtige ruimte. 
De huurwoningen in het zuiden zijn zogenaamde rug-aan-rugwoningen. Deze woningen hebben aan een zijde een privétuin. Deze tuin grens direct aan de parkruimte. In het ontwerp van deze woningen is veel aandacht voor de (groene) erfafscheiding om de privacy te borgen.  
Alle woningen hebben een aparte berging om bijvoorbeeld fietsen te stallen. 

Ontsluiting en parkeren

De woningen worden ontsloten via de Roest. Parkeren gebeurt overwegend in clusters. Alleen de hoekkoopwoningen hebben parkeerplaatsen op eigen terrein. 
Wandelaars kunnen ook naar en over het onverharde pad de Locht lopen.

Groene woonomgeving

Rondom de woningen wordt een nieuw parkachtige ruimte gemaakt met bomen, heesters en wandelpaden. In het groen is ruimte voor sport, spel, ontmoeting en ook voor de noodzakelijke waterberging. Een nieuw park om eens een ommetje te maken. Hiermee is deze nieuwe buurt een aanvulling voor alle inwoners van Olland. 

4 Reacties op het plan

4.1 Over het ontwerp

Respondenten hadden de mogelijkheid om drie soorten icoontjes op de kaart te plaatsen en te voorzien van een opmerking. Met verplaatsbare icoontjes konden respondenten de volgende plekken op de kaart aanwijzen: 

  • Positieve plek: een plek in het ontwerp waar de respondent tevreden over is (4.2.1). 
  • Verbeterplek: een plek in het ontwerp waar de respondent kansen ziet voor verbetering (4.2.2),
  • Suggestie: een plek in het ontwerp waar de respondent een suggestie voor heeft (4.2.3)

In de kaarten hierna is met een nummer op de kaart aangegeven op welke plek in het plan de opmerking betrekking heeft. 

4.2 Reacties op de kaart

4.2.1 Positieve plekken

Toelichting respondenten bij het aanwijzen van een positieve plek

Er zijn in totaal 55 positieve plekken aangewezen. Hierbij zijn 52 reacties achtergelaten. We hebben ze per deelgebied verzameld.

Positieve plekken

Positieve plekken
1    
  • Mooie plek in het plan
  • Ligt op een goede plek, met uitkijk op groen en zonder hinder voor huidige bewoners pastoor Smitsstraat.
  • Mooie ligging
  • Combinatie koop en huur
  • Koopwoningen
  • Mooie hoek krijg je zo
  • Het mooie uitzicht
  • Mooie ligging van de woningen
2
  • Veel groen aanwezig en iedere woning kijkt uit op het groen
  • Waarom is er ook geen mogelijkheid voor negatieve plek aan te geven?
  • Genoeg ruimte om te parkeren
  • Je kijkt mooi weg
  • Koopwoningen
  • Je eigen schuur (meer bergruimte aangezien je geen zolder hebt)
  • Mooie plek in het plan
  • Koopwoningen goed plan
  • Toegang naar de huizen
  • Koopwoningen prima
3     
  • Prima groene openbare gebruiksruimte. Zorg wel dat het goed onderhouden wordt want anders kan het zomaar een plek worden waar van alles wordt neergezet of gedumpt
  • Behoud van het wandelpad en de bomen aan de Locht.
  • Nostalgie
  • Ziet er heel sfeervol en mooi uit. Denk wel aan muggen op stilstaand water
  • Behoud van pad en bomen
  • Groene omgeving met speel gelegenheid voor kinderen op een leuke alternatieve wijze t.o.v. een reguliere speeltuin
  • Groen aangekleed
  • Ruime groene uitkijk
  • Veel ruimte voor natuur en water
  • Groene omgeving
  • Het pad aan de Locht met zijn prachtige populieren behouden, is positief
  • Ontsluiting met de Locht
  • Leuk idee om op deze manier aansluiting te creëren naar de Locht
  • Veel ruimte voor water en natuur
  • Het groen met vijver
  • Mooi groene uitstraling
  • Behoud wandelpad, goed voor de omgeving en natuur
4    
  • Veel water en groen
  • Ruimte voor water en doorkijk voor woningen naar achtergelegen gebied.
  • Speeltuin voor kinderen
  • Afstand tot bestaande bebouwing
5    
  • Behoud van uitzicht
  • Goed dat er ook sociale huurwoningen zijn in deze tijd van woningnood
  • Mooi uitzicht op het parkje
  • Goede plek voor sociale huurwoningen, geclusterd en in een groen ruimtelijke omgeving
  • Het groen behouden/ verbeteren
  • Geen woonwijk, maar veel groen en ruimte in het ontwerp
  • Dat er koopwoningen komen voor de jeugd
  • Veel groen en niet direct huizen in de achtertuin hoop ik
  • Veel groen, gras. Geen bomen zoals ik kan zien
  • Lekker veel groen achter het huis en vooral geen inkijk
  • Dat er huizen worden gebouwd voor Ollandse mensen
  • Goede plek voor deze rug aan rug woningen. Mooi gesitueerd
  • Leuke rug aan rug woning. Mogelijkheid voor koop zou een optie kunnen zijn

4.2.2 Verbeterkansen

Toelichting respondenten bij het aanwijzen van een verbeterkans.
Er zijn in totaal 52 verbeterkansen aangewezen. Hierbij zijn 49 reacties achtergelaten. We hebben ze per deelgebied verzameld.

Verbeterkansen

Verbeterkansen
1    
  • 1 toegangsweg (met als nood richting de Roest) vind ik erg weinig voor 20 (met roest erbij 50) woningen
  • 1 smalle uitgang voor veel verkeer bewegingen
2
  • Onvoldoende ontsluiting op de geplande ontsluiting zijn ook de 32 woningen aangewezen nu nog een 20 extra er is geen uitgang richting Pastoor Smitstraat
  • Roest is een ander project maar wel minder mooi ingericht. Verder is er ook maar 1 directe ontsluitingsweg, zorg voor een voldoende brede straat wellicht zodat bij calamiteiten erlangs gereden kan worden
  • Ontsluiting van de woningen via 1 smalle toegangsweg
  • Ik vind dat het erg weinig woningen zijn en ben bang dat dit de woningvraag in Olland niet dekt! Of de Roest moet nog met 30 woningen komen maar daar zijn ze al ZO lang mee bezig...!
  • Wanneer dit huis vervalt of verplaatst wordt naar rij parallel aan Pastoor Smitsstraat, ontstaat er ruimte om alles op te schuiven (de weg, huizenrij Pastoor Smitsstraat), zodat er grotere afstand ontstaat naar de achtertuinen van huidige woningen Pastoor Smitsstraat) Er mag meer gekeken worden naar de nadelige gevolgen van dit plan voor de huidige bewoners en om hun zoveel mogelijk tegemoet te komen in behoud van minimaal rust, ruimte en privacy. Praat met hen!! Hoor hen aan! Overleg het plan met de gedupeerden van dit plan!
  • Bij de gemeente wordt met twee maten gemeten. Vanwege het cultureel historisch zandpad zou het helemaal niet moeten kunnen dat er een agrarisch weiland omgezet mag worden naar bouwlocatie waardoor het cultureel historisch zandpad zijn waarde verliest. Wij zullen ook aan onze zijden bij doorgang hierop reageren met een grote (geluid en zicht) wal! Wij geen landschappelijk uitzicht dan jullie ook niet!
  • Minder huurwoningen.
3   
  • Parkeren voor je huis
  • De benaming welke u aan deze bomen geeft is zwaar overtrokken aan de Locht staan gewoon populieren productiehout welke ongeveer 35 jaar gelden geplant zijn door mij en door Kees van Hout gewoon als her plant van de bekwame gerooide populieren
  • Hier rug aan rugwoningen bouwen.
  • Huizen aan deze zijde en het water aan de overkant
  • Het mag smaller worden, richting de Locht. Zodat huizen op kunnen schuiven richting de Locht, waardoor meer ruimte ontstaat tussen achtertuinen nieuw en oudbouw. Bewoners Pastoor Smitsstraat leveren véél in met dit plan. Tegemoetkoming in ruimte creeren biedt hun nog enige vorm van rust, ruimte en privacy. Het uitzicht zijn ze al kwijt. Geef iets terug!
  • Wandelpad niet recht door de Wadi laten lopen. Het moet ook in natte tijden bruikbaar blijven.
  • Speeltuin toepassen
  • Te grote wadi. Mogelijk infiltratiekratten onder de bestrating aanbrengen voor extra waterberging
  • Ruimte voor nog minimaal 6 koopwoningen.
4    
  • Afstand tussen achtertuinen van oud en nieuw zo groot mogelijk maken, met goede groene afscheiding, die zorgt voor privacy, geluidsdemping en mooiere uitstraling/uitzicht.
  • Indien er een pad of een open strook langs de sloot komt te liggen i.p.v. onderhoud sloot met daarachter een forse, hogere, groenstrook (bosplantsoen) of hoge groenblijvende losse, event. gemengde haag (Laurier/Ilex (hulst)) dan is het voor ons van belang dat dit pad, deze open strook niet voor wandelaars toegankelijk is, geen openbaar pad. Mogelijk te realiseren met hekwerk/toegangspoort.
  • Om de privacy van de huidige bewoners nog enigszins te waarborgen zou een strook (ong. 4 meter breed) bosplantsoen in het gedeelte tussen de huidige en de nieuwe achtertuinen, naast een sloot en een werk pad, erg functioneel kunnen zijn. Zo'n strook gemengde beplanting is ook interessant in het licht van geluidsremming, biodiversiteit. Wat extra ruimte tussen de achtertuinen zou m.i. gecreëerd kunnen worden door het iets inkorten van de nieuwe achtertuinen of door het iets noordoostwaarts verplaatsen van het hele blok en de daaraan liggende weg. Het werk pad zou afgesloten moeten worden voor wandelaars.
  • Onze achtertuinen zullen straks grenzen aan de achtertuinen van de nieuwbouw. Om zoveel mogelijk onze privacy te waarborgen is de aankleding van de ruimte tussen beide tuinen van belang. Ik begrijp dat aldaar een brede sloot komt te liggen met daaraan een pad, ruimte, voor onderhoud sloot. Wat dan vervolgens de privacy en zicht op elkaars tuinen ten goede zou komen is een forse groenstrook achter het onderhoudspad. Ik denk dan allereerst een brede bosplantsoenstrook (gemengde beplanting met daarin een paar solitaire bomen, event. populier of, bij minder ruimte een wat losse groenblijvende haag
  • De ruimte tussen achtertuinen Pastoor Smitsstraat en die van het nieuwe plan zo groot mogelijk maken, i.v.m. gevoel van ruimte-, rust- en privacybehoud voor gedupeerde bewoners, die door dit plan bijzonder véél moeten inleveren. Kom hun zoveel mogelijk tegemoet.
  • Bredere, niet bewandelbare groenstrook tussen tuinen, t.b.v. privacy, uitzicht, fauna en demping omgevingsgeluiden.
  • Aan de andere kant van het plan en het water/speelplek op de plek
  • Door deze huizen een kwartslag te draaien in het plan verminder je de inkijk bij de aanliggende bestaand woningen. Daarmee vergoot je het draagvlak voor deze bebouwing
  • Leg de weg achter de huidige woningen waardoor de nieuwe woningen minder zicht en inkijk hinder hebben.
  • Houd rekening met de hellingshoek van de daken, daar komen waarschijnlijk zonnepanelen op (zuid ligging) en we moeten voorkomen dat de huidige aanwonenden in een zonlichtspiegel terecht komen.
  • Blok opdelen in 3x 3 huizen en beden een kwartslag draaien. Daarmee vermindering inkijk bij de huidige aanwonenden. Door deze wijziging liggen er maar 2 tuinen aan de aanliggende woningen, nu 6
  • Het gebruik van de bergingen vanwaar uit te bereiken
  • Woningen opsplitsen in 2 x 3 woningen met een parkeerkoffer in het midden.
  • Door de huizen een kwartslag te draaien voorkom inkijk bij de huidige bewoners vanuit 6 woningen. Eventueel zou daarbij de weg richting de sloot verplaats kunnen worden
  • Jammer dat er niet vooraf met aanwonenden over het plan is gesproken. Dat de huidige bewoners inkijk krijgen van 6 nieuwe buren stemt mij niet vrolijk. Ik vraag me af of dit niet ander kan. Bijvoorbeeld door de woningen een kwartslag te draaien waardoor de zijkant van 1 nieuwe woning aan de achterzijde van de huidige bewoners komt te liggen. Tevens minder inkijk in de tuinen doordat men tegen de zijgevel aan komt te kijken i.p.v. inkijk vanuit 6 dakkapellen.
  • Weg verplaatsen richting de huidige woningen waardoor de nieuwe woningen verder weg komen te staan.
5    
  • Extra parkeergelegenheid op een andere positie. Kans is groot dat er bij voldoende ruimte alsnog geparkeerd wordt, waardoor doorkijk vanuit woningen weggenomen wordt.
  • Te weinig koopwoningen
  • Pad achter tuinen huizen aan Pastoor Smitsstraat, verstoring van rust + uitzicht huizen aan Pastoor Smitsstraat weg :(
  • Te weinig parkeerplaatsen
6    
  • Draai de ligging in spiegelbeeld! Maak er betaalbare huur seniorenwoningen van voor de Ollandse ouderen. Een mooie woonvorm voor Ollandse ouderen bij elkaar. Fijne sociale omgeving. Handig voor de evt. wijkverpleging en/of thuishulp. Deze ouderen maken dan huizen vrij voor de jeugd van Olland.
  • Creëer deze woningen op plaatsen waar voorzieningen zijn bijvoorbeeld in woonkernen waar winkels openbaar vervoer is in Olland missen ze alles wat juist voor deze bewoners noodzakelijk is gevolg zijn doodongelukkig en proberen zo snel mogelijk weg te komen en stop ze niet in een kleine hechte woongemeenschap waar zij niets mee hebben
  • Sociale woningen liggen gericht naar onze woning. Privacy inbreuk. Sowieso is het voor ons niet wenselijk en al helemaal niet wenselijk de sociale woningen uit het zicht in de uiterste hoek te plaatsen. Geen sociaal toezicht!
  • Geen toegankelijkheid van ambulance en overige hulpverleners direct bij de woning. Die specifiek bedoeld zijn voor een aparte doelgroep
  • Groen wandelpark maken.
  • Bij de gemeente wordt met twee maten gemeten. Vanwege het cultureel historisch zandpad zou het helemaal niet moeten kunnen dat er een agrarisch weiland omgezet mag worden naar bouwlocatie waardoor het cultureel historisch zandpad zijn waarde verliest. Wij zullen ook aan onze zijden bij doorgang hierop reageren met een grote (geluid en zicht) wal! Wij geen landschappelijk uitzicht dan jullie ook niet!
  • Rug aan rugwoningen richting het plan van Van Hoof. Dan kan het achterste gedeelte van het plan als wandel waterpark worden. Voordeel er komen geen auto's vlak bij het wandelpark/ natuurgebied. Dit is ook veiliger voor de kinderen. Auto's rijden vanaf de enige in- en uitgang naar de huizen en niet verder naar de groene strook.
  • De koopwoningen een slag draaien
  • Plek kan maar dan meer komt en aan de achter buren denk dat die er niet veel last van krijgen
  • Toegankelijkheid in noodsituatie rondom gebouw
  • Te veel huurwoning in het project. Past niet bij de dorpsvraag

4.2.3 Suggesties

Toelichting respondenten bij het aanwijzen van een suggestie

Er zijn in totaal 41 suggesties aangewezen. Hierbij zijn 40 reacties achtergelaten. We hebben ze per deelgebied verzameld.

Suggesties
1    
  • Maak hier ook een uitrit
2
  • Er staat in de omschrijving dat de woningen worden ontsloten op de Roest maar dit moet toch zijn Pastoor Smitsstraat? Ontsluiting en parkeren De woningen worden ontsloten via de Roest.
  • Drempelconstructie. Smalle uitrit van straks ook de landwinkel dus vermenging van verkeer.
3    
  • De verhouding is nu 11 huurwoningen en 9 koopwoningen. Kan deze verhouding worden aangepast zodat er meer goedkopere koopwoningen worden voor starters uit Olland en iets minder huurwoningen
  • Prijs voor de huidige Huizen is als het goed is nog niet bekend, maar let hierbij goed op de doelgroep waarvoor koop bedoeld is. Als je kijkt naar de huizen die momenteel te koop staan, zijn deze (wellicht ook door hoge prijs) al lang te koop.
  • Indien u dit pand verhuist naar de rij meest zuidelijke woningen, alwaar de achtertuinen aan onze achtertuinen grenzen, kunnen deze, inclusief de weg, noordelijk opgeschoven worden waardoor er meer ruimte ontstaat tussen de achtertuinen en kan deze ruimte nog beter ingericht worden in het kader van privacy.
  • Door dit smaller te maken, kan ook de weg én de huizenrij meer verplaatst worden richting de Locht. De bewoners van Pastoor Smitsstraat leveren veel in! Er moet óók gekeken worden hoe zij in ieder geval hun privacy, rust en toch enige vorm van ruimte behouden.
  • Meer parkeren?
  • Natuurgebied en koopwoningen van plaats verwisselen. Koopwoningen uitzicht op groen, voorbij De Locht en natuurgebied in het plan. Behoud privacy en uitzicht woningen aan de Pastoor Smitsstraat.
  • Ik zou hier zeker parkeerplaatsen realiseren! Als elk huishouden 2 auto's heeft dan heb je voor 20 huizen al 40 auto's laat staan als er een verjaardag/feestje is en er bezoek moet komen. Dan moeten bewoners wel gewoon kunnen parkeren.
  • De gemeente meet met twee maten! Wij vinden het niet kunnen dat de gemeente een weiland (bestemming agrarisch) langs het cultureel historisch pad om kan zetten in een bouwlocatie. Dit zou voor een gewone burger ook niet mogelijk zijn. Wij hebben in eerste instantie ook nee op rekest gekregen pas toen wij zelf konden aantonen dat het cultureel historisch pad bij ons bouwvlak stopt konden wij onze plannen omzetting VAB doorzetten. Dit is onacceptabel en onwenselijk. Volgens ons flora en fauna onderzoek is het tevens een foerageergebied voor vleermuizen!! Alleen groen licht is daarbij toegestaan
  • Luister beter naar de behoefte van de Ollanders! Er is behoefte aan betaalbare starters koopwoningen en seniorenwoningen. Er is jaren niet gebouwd in Olland. Er is grote behoefte vanuit de eigen Ollandse gemeenschap. Belachelijk als zij niet aanbod komen en moeten vertrekken uit Olland en in Olland mensen van buitenaf gehuisvest gaan worden die niks met Olland hebben. Zorg voor de jeugd en ouderen uit Olland. Beter voor de veiligheid, cohesie en Ollandse identiteit. Kijk bij op inschrijving naar de Ollandse inschrijvingen. Kijk bij loting naar de Ollanders die in Olland willen wonen.
  • Huurwoningen wijzigen in koopwoningen.
  • Verlichting opnemen in de natuurlijke vorm i.v.m. veiligheid.
  • Toegankelijkheid ruim genoeg i.v.m. hulpdiensten
4    
  • Rekening houden met het zichtverlies voor de mensen die nu aan de pastoor Smitsstraat wonen
  • Draai deze woningen een kwartslag, daardoor kont er maar 1 woning met de tuin aanliggend tegen de bestaande woningen aan de pastoor Smitsstraat.
  • Kleinere achtertuinen, om zoveel ruimte te creëren tussen tuinen oud en nieuw. Aansluitend aan de achtertuinen en soort brandgang, dan een hoge, brede groenstrook (geen gras!), dan een breed pad voor onderhoud, wat zodanig wordt afgesloten dat er geen wandelaars komen, dan een brede sloot. Denk aub aan voldoende behoud van rust, ruimte en privacy voor de huidige bewoners! Dikke groenstrook werkt ook geluiddempend en geeft ruimte aan de natuur.
  • Zoveel mogelijk afstand houden, geluidsoverlast minimaliseren, privacy behouden voor gedupeerde bewoners!! Ook kijken naar geluid warmtepomp en de plaatsing daarop aanpassen. Heel veel suggesties om dit voor elkaar te krijgen. Liefst in overlegvorm bespreken met gedupeerde mensen met koopwoningen.
  • Plaats een grote hoge haag aan de achterzijde van deze woningen (in de openbare ruimte) indien de positie blijft gehandhaafd. Zorg voor een afgesloten groenstrook waarbij deze niet openbaar toegankelijk is als bijvoorbeeld wandelgebied of honden uitlaat terrein. Daarmee blijft de privacy voor de bestaande woningen zo goed als mogelijk intact.
  • Veel Groen achter de bestaande woningen van dit moment
  • Bouwhoogte en omvang raampartijen achterzijde beperken. Tevens toekomstige mogelijkheid tot ophogen/ uitbreiding met dakkapellen beperken.
  • Maak afspraken met de bestaande aanwonenden dat de Gemeente zorgt voor een eenduidige erfafscheiding aan de achterzijde/ waterloop kant. Daarbij kan een water/grondkering worden gebruikt. Door dit voor de aanwonenden uit handen te nemen (en te bekostigen) zullen de bezwaren verminderen.
  • Wisselen van pad en groenstrook, dus aan de sloot een breed pad voor onderhoud sloot. Dan een brede groenstrook met bosplantsoen, dan een soort brandgang aan achtertuinen nieuw plan.
5    
  • Groenstrook breder maken.
  • Is er nagedacht over toekomstige uitbreiding van dit plan? Bijvoorbeeld bouwen aan de overkant van de Locht.
  • Met de woningen (rug aan rug) ben ik een beetje huiverig dat de voortuintjes dadelijk gevuld zullen zijn met groene en grijze afvalcontainers (zoals in Schijndel). Is het mogelijk om een aparte plek met aanplant te realiseren om daar die containers uit het zicht neer te zetten. Of wellicht moet er 1 grote grijze en groene afvalcontainer komen voor alle 8 de woningen.
  • Zandpad de Locht verharden.
  • Alle woningen uit laten kijken op de Locht. Ofwel via de verdieping beneden (voor de woningen welke dichtste bij Locht liggen) en vanaf de eerste verdieping (andere woningen).
  • Prioriteit voor Ollanders!!!
  • 6 extra koopwoningen
  • Solist deze blok in 2x3 woningen met daartussenin de parkeerplaatsen.
6
  • Meer koopwoningen is wat Olland nodig heeft
  • Hopelijk worden de huur huizen groot genoeg voor een klein gezin en niet alleen voor een 2 persoonshuishouden.
  • Rug aan rugwoningen richting de Roest zodat evt., het aangekochte gedeelte van huisnummer 8C ook groen kan blijven. Dus aan die kant een groene strook park kan maken i.p.v. tegen het plan van Hoof aan. Dit zal zeker een voordeel zijn voor degene die in de aangrenzende villa wonen.
  • Deze woningen creëren in of nabij een woonwijk met voorzieningen de rijkssubsidie is dan even goed van toepassing en de toe gewezen bewoners profiteren van de daar voorhanden zijnde voorzieningen
  • Hier groen wandelpark. Andere kant rug aan rugwoningen aan de andere kant richting de Locht tegen het plan van Van Hoof aan.
  • Kan ik van in komen dat het der komt als ze maar rekening houden met buren
  • Bestaande ontsluiting weg behouden voor noodgevallen
  • Aansluitend kavel erbij kopen. Extra rug aan rug woning toevoegen. Hiervoor zou er wel een extra aansluiting op de Pastoor Smitsstraat moeten komen

4.3 Algemene vragen of opmerkingen

Er zijn in het totaal 28 vragen gesteld of opmerkingen gemaakt. Deze zijn hieronder opgesomd per thema. 

Vraag
Ontwerp als geheel    
  • 1. Vraagtekens ontstaan bij bouw in buurt van geitenhouderij terwijl het onderzoek naar Q-koorts nog niet is afgerond. Dat is spelen met gezondheid van anderen, vind ik. Je legt de verantwoordelijkheid bij de mensen neer, door het een document te laten ondertekenen dat zij het risico nemen. Schandalig. De gemeente hoort te zorgen voor een veilige omgeving! 
  • 2. Graag pleit ik voor een overleg met de bewoners van aangrenzende (koop)woningen aan pastoor Smitsstraat. Zij zijn de enige, die gedupeerd zijn in dit hele plan. Zij verliezen veel op het gebied van woongenot, door het inleveren van uitzicht, maar ook het inleveren van rust, ruimte en privacy. Het uitzicht zijn we kwijt, maar laten we dan gezamenlijk kijken hoe de rust, ruimte en privacy zo optimaal mogelijk behouden kan blijven.
  • De Ollandse jeugd heeft weinig kans!!!!! I.v.m. te kort in geschreven staan bij Woonmeij als ze op basis van inschrijvingen gaan hanteren. Gemiste kans om de jeugd hier te houden
  • Goed plan z.s.m. starten na alle procedures.
  • Het is een goed plan, zal vast mooi worden, dus meer mensen, misschien dan snel een streekwinkel of buurtwinkel, ook een gemak voor de omgeving
  • Het plan is prachtig voor de nieuwe bewoners. Dan is gelet op privacy, op uitzicht, op groen. Echter, datzelfde is belangrijk voor de huidige bewoners, die grenzen aan het plan. Ik vind dat daar veel meer naar gekeken mag worden. Het is een behoorlijke aderlating voor ons, als aangrenzende bewoners. Niet alleen het woonplezier krijgt een fikse tik, ook de waarde van het huis. Graag samen zoeken naar verbetering hierin.
  • Met de bestrating rekening houden met mensen die slechter ter been zijn
  • Mocht er mogelijkheid zijn om het aantal woningen uit te breiden, dan lijkt het me goed om die mogelijkheid te benutten. Hopelijk kan er voor Ollandse woningzoekenden of mensen met een sterke binding met Olland voorrang of meer kans gegeven worden bij een loting gegeven worden.
  • Onbegrijpelijk dat we de meest kwetsbare groepering in de uiterste hoek zetten van het plan met de minste sociale controle. Het plan is een inbreuk op onze privacy, landschappelijk uitzicht en veilige leefomgeving. Wij hebben al te veel last van laagfrequent geluid van de geitenboer en hierdoor cumuleert het laagfrequent geluid met nog eens 20 + 32 warmtepompen! Er wordt met dit plan niet ingespeeld op de behoefte van Ollanders maar op de landelijke wooncrisis. Olland heeft geen supermarkt, geen openbaar vervoer, nauwelijks tot geen werkgelegenheid en een gezondheidsrisico door de aanwezigheid van twee geitenboeren. Voor buitenstaanders geen gezonde plek om te aarden en te integreren als alleenstaande. Er moet gedacht worden aan de behoefte van de Ollanders en voor de Ollanders gebouwd gaan worden.  Waarom wordt er niet verder ontwikkeld op het laatste bouwplan in Olland bij het voetbalveld richting de roest? Dit was jaren geleden de bouwlocatie.
  • Smeer het uitvoeren van het plan uit over meerdere jaren omdat een kleine gemeenschap als Olland de vraag naar woningen per jaar maar beperkt is. Maar wel een contante vraag ernaar aanwezig is.  In verhouding tot het gemiddelde aantal statushouders per 1000 inwoners is dat aantal in Olland al bereikt en is het huisvesten van nog meer statushouders niet gerechtvaardigd. Het percentage huurwoningen in Uw project is veel te hoog dus moet dat aantal naar beneden met voorrang voor de Ollanders die daar behoeften aan hebben.
  • Probeer de snelheid erin te houden en blijf communiceren over de voortgang, aanpassingen e.d. Op moment dat er een definitief besluit is genomen wat voor soort woningen het gaan worden dan graag ons informeren en ook evt. de inwoners voorleggen!!
  • Wat gaan de koopwoningen ongeveer kosten?
Woningtypen:
  • Er werd op de vergadering van 8-4-2024 aangegeven de mensen willen seniorenwoningen. In Olland heb je geen voorzieningen. Als ouderen niet meer auto kunnen rijden of fietsen dan is naar mijn mening in Olland geen optie voor seniorenwoningen, die kan je dan beter meer gaan bouwen in de kern van Sint-Oedenrode.
Klimaat:
  • Hoe worden de woningen voorzien van warmte? Als dit gebeurt middels een warmtepomp: waar worden deze dan geplaatst? Hoeveel geluid (dB) wordt er door 1 warmtepomp geproduceerd? Hoeveel geluid produceren de warmtepompen van de 6 woningen?
  • Hoe wordt de energievoorziening geregeld? Wordt het gasvrij en komen er warmtepompen? Zo ja hoe zien we dat dan visueel voor ons en hoe zit dat met het geluid met 20 warmtepompen op een relatief klein gebied. Ook bij de sociale huur warmtepompen aan de voorzijde, mogelijk wat containers en wat tuinmeubelen. Dat wordt er niet fraaier op lijkt me. Kunnen we dat anders oplossen?
Doelgroepen:
  • Laat de eigen Ollandse jeugd en ouderen niet vertrekken uit Olland te kosten van mensen buiten Olland. Een klein dorp als Olland moet zijn identiteit kunnen houden en heeft recht na jaren van niet mogen bouwen om nu voorrang te krijgen. De jeugd is belangrijk voor de leefbaarheid van Olland en de nog net bestaande sportverenigingen.
  • Ik hoop dat dit plan de woningvraag dekt (maar ben er bang voor). Ik ben er ook bang voor dat ik alsnog geen kans maak op een woning. Doordat ik en mijn vriend door omstandigheden niet kunnen kopen zijn wij genoodzaakt om te huren als ik dan kijk dat er van de 10 huur woningen er 2 worden toegewezen en 4 met inschrijfjaren ( ik heb er nog niet zoveel ) ben ik aangewezen op de 4 huurwoningen die met loting gaan en eerlijk gezegd denk ik dat hier meer medebewoners het van moeten hebben aangezien je in deze tijd meer dan 10 jaar ingeschreven moet staan om enigszins boven aan de lijst te komen staan en de jeugd in Olland heeft die 10 jaar nog niet! (of je moet 28 + zijn)
  • Meer koopwoningen (50%van 20 is volgens mij 10, en niet 9. Koopwoningen zoals aangegeven). Als de norm 30% huur is, waarom wordt er dan hiervan afgeweken. Dit zou betekenen 14 koopwoningen en 6 huur. Een goed voorbeeld zijn de woningen aan Den Ekker, hier heeft de woningbouwvereniging de koophuizen gebouwd met de mogelijkheid van terugkoopgarantie. Hier zie je ook dat er veel wisseling van huizen is, door vooral jonge Ollandse mensen. Jonge Ollandse mensen krijgen de mogelijkheid een huis te kopen, en er is doorstroming.
  • Prioriteit voor Ollanders vind ik belangrijk en hier moeten gemeente en woningbouw zich hard voor maken. Verder is er een enorme vraag naar betaalbare koopwoningen in Olland. Dus aanpassing naar minder huur en meer koopwoningen is zeer gewenst.
Vragen: 
  • 1) komt een woonplicht bij de koopwoningen? 
  • 2) komt er een soort van slimme koopregeling waar bij verkoop men eerst het huis aan de woningcorporatie moet aanbieden waardoor de huizen voor de doelgroep beschikbaar blijven!
  • Wij vinden het een mooi plan en hard nodig voor Olland. We hopen wel dat starters uit Olland een voorkeursbehandeling kunnen krijgen zodat ze kans maken op een woning. Met name voor de leefbaarheid van Olland, de verenigingen en de school is dat heel belangrijk! Ik hoop dat de woningen die je kunt huren van de woningbouw ook echt voor Ollandse mensen worden. Ik hoop dat zij eerste keus zijn en dan pas de mensen buiten Olland. Dat er ook wordt gedacht aan 1 persoons huishoudens zou ook erg prettig zijn
Participatie:    
  • Doe goed onderzoek naar de prijsindicatie voor de koopwoningen en of dit past bij de doelgroep. Ook kan erna worden gedacht over hoe de verkoop regeling zal verlopen (eerst komt eerst maalt of bijvoorbeeld met motivatie). Communiceer beiden duidelijk naar inwoners van Olland.
  • Eerst eigen inwoners bevragen naar interesse
  • Ga in gesprek met de huidige aanwonende bewoners van de Pastoor Smitsstraat, dat zijn de meest direct belanghebbenden. Ik denk dat door het gesprek aan te gaan en oplossingen te bespreken voor bezwaren en veel tijd gewonnen kan worden.
  • Graag gedegen overleg met aanwonenden (in ieder geval de bewoners met een koopwoning). De algemene informatieavond was leuk maar biedt geen/onvoldoende ruimte voor een goed gesprek met direct belanghebbenden.
  • Hoe kan het toch dat woningbouw in Olland jaren wordt getraineerd tot dat zowat alles stuk is in de kleine woonkern, en er nu ongevraagd en zonder ook maar een vorm van vooroverleg in enkele maanden alles kan? Wat is er gedaan met al die woonbehoefte enquêtes?
  • Verplaats de woningen die aan de huizen aan de pastoor Smitstraat grenzen een meter of 10. Dan kan de weg verlegd worden richting deze woningen waardoor er minder inkijk is bij de bestaande woningen. Hierover in gesprek gaan met de direct aanwonenden lijkt me sowieso een vereiste om niet vast te lopen in bezwaarprocedures.

5 Reacties op de opmerkingen 

Algemeen 

De gemeente is verheugd te zien dat zoveel mensen de moeite hebben genomen te reageren op het plan, en gaat haar best doen het plan zoveel mogelijk te verrijken met de vele suggesties. Het aanpassen zal echter wellicht voor de ene persoon als een verbetering worden gezien, maar tegelijkertijd voor de ander als een verslechtering. De gemeente houdt dan ook vooral de integraliteit van het plan in gedachten, waarbij het zo goed mogelijk dienen van het brede maatschappelijke belang voorop staat. Hoewel niet op iedere opmerking in detail wordt ingegaan in dit verslag, geven we hierna wel een aantal reacties en verduidelijkingen op hoofdlijnen. 

Algemene ontwerpopzet

De groene opzet wordt door veel mensen gewaardeerd. Die was dan ook bewust in het plan opgenomen. De gemeente streeft op deze locatie naar een zachte overgang van het dorp Olland naar het landelijke gebied. Een relatief hoog aandeel ruimte voor groen en water, en de lagere woningbouwtypen passen daar goed bij. Ook is dat grote aandeel water/ wadi/ groen nodig voor de waterhuishouding; een groot deel van het groen zal worden vormgegeven als wadi (met medegebruik voor bijvoorbeeld spelen).

Woningtype

In de aanloop naar de participatieavond hebben we de verdeling van de woningtypologieën al veranderd van 2/3 huur en 1/3 koop, naar ca. 50/50 huur en koop. Daarmee worden dus iets meer koopwoningen gerealiseerd dan eerder de gedachte was. Dat is gedaan om beter aan te sluiten bij de behoefte van Olland. 
De woningen zijn primair bedoeld voor kleine gezinnen: 1- tot 2-persoonshuishoudens. Dit ter aanvulling op het programma dat al binnen zowel de gemeente als geheel als binnen Olland in het bijzonder aanwezig is (en komt, met de realisatie van bijvoorbeeld ook het plan voor de Roest). 
Tussen de woningcorporatie en gemeente is afgesproken dat 50% van de sociale huurwoningen met voorrang wordt verhuurd aan inwoners met kernbinding met Olland. De exacte voorwaarden hiervan worden nog uitgewerkt. 

Parkeren

Voor parkeren geldt dat het plan moet voorzien in de totale opgave, dus geen overloop om te omgeving. 
Voor het aantal parkeerplaatsen dat nodig is voor de koopwoningen is gerekend met de normen uit de Nota Parkeernormen Meierijstad, vastgesteld in 2018. 
Voor de sociale huurwoningen wordt regelmatig ervaren dat de daarin genoemde parkeernorm te hoog is, waardoor aangelegde parkeerplaatsen onbenut blijven. Voor de Locht zal daarom voor de sociale huurwoningen naar alle waarschijnlijkheid gewerkt worden met een wat lagere norm. Voorwaarden hierbij zijn dat voldoende parkeerruimte wordt gereserveerd binnen het plan, om eventuele tekorten (mochten die later toch blijken) op te kunnen lossen. En dat bij de planvoorbereiding wordt onderzocht (met vergelijkbare woningtypen in een vergelijkbare situatie) hoe laag de aangepaste norm zou kunnen zijn. 

Energie en duurzaamheid

De modulaire woningen die zijn beoogd, moeten voldoen aan de BENG-norm. 

Hoe nu verder

Momenteel wordt nog volop doorgewerkt aan een aantal (vervolg-)onderzoeken. Ook wordt nu gekeken hoe het plan verbeterd kan worden. Het aangepaste plan zullen we weer met de bewoners van Olland delen. In welke vorm we dat doen, wordt de komende periode verder uitgewerkt.  

6 Samenvatting en conclusie

De gemeente Meierijstad wil samen met woningbouwcorporatie Woonmeij modulaire nieuwbouwwoningen realiseren aan de Locht in Olland. Het gaat om koopwoningen- en sociale huurwoningen. De locatie ligt achter de bestaande woningen aan de Pastoor Smitsstraat, en komt naast het nieuwbouwplan ‘Roest’. Het gebied wordt verder omsloten door het groene buitengebied van Olland. Het onverharde pad De Locht vormt de begrenzing aan de noordoostzijde.

De bewoners van Olland zijn per brief ingelicht over het voornemen om op de planlocatie woningen te realiseren. Onderdeel van het proces is dat de gemeente in gesprek gaat met omwonenden. De omgevingsdialoog is hier onderdeel van. 

NieuwBlauw heeft voor de omgevingsdialoog voor de gemeente Meierijstad een digitale omgeving (maptionnaire) ingericht. Tussen 8 en 28 april 2024 konden respondenten de online omgevingsdialoog openen. De vragenlijst is beschikbaar geweest voor iedereen, de link heeft in de informatiebrief en op de website van de gemeente Meierijstad gestaan. Ook is de link in de plaatselijke krant verschenen. In het totaal hebben 93 respondenten de digitale omgevingsdialoog bezocht. 

De omgevingsdialoog voor De Locht bestond uit een planuitleg en een mogelijkheid om op het plan te reageren. Alle informatie was te vinden in de online omgevingsdialoog. De tekstuele toelichting op het ontwerp is opgenomen in paragraaf 3.1 van voorliggende verslag. Respondenten hadden de mogelijkheid op drie soorten icoontjes op de kaart te plaatsen en te voorzien van een opmerking. Met verplaatsbare icoontjes konden respondenten de volgende plekken op de kaart aanwijzen: positieve plek, verbeterplek en suggestie. Daarnaast konden respondenten een algemene opmerking achterlaten. 

In het totaal zijn 176 reacties gegeven:

  • Er zijn in het totaal 55 positieve plekken op het ontwerp aangewezen. Bij 52 positieve plekken is een toelichting achtergelaten;
  • Er zijn in het totaal 52 verbeterplekken op het ontwerp aangewezen. Bij 49 verbeterplekken is een toelichting achtergelaten; 
  • Er zijn in het totaal 41 suggesties op het ontwerp aangewezen. Bij 40 suggesties is een toelichting achtergelaten;
  • 28 respondenten hebben een algemene opmerking achtergelaten. 

De positieve reacties hadden vooral betrekking op de groene opzet van het ontwerp, het toevoegen van woningen in Olland, plek voor spelen en ontmoeten. Ook het behoud en versterking van het groen wordt genoemd. 
De negatieve reacties betroffen veelal zorgen over het uitzicht voor de bewoners aan de Pastoor Smitsstraat, de aantallen en positie van de bebouwing, en zorgen over de afwikkeling van het autoverkeer en het aantal parkeerplaatsen. 
Suggesties hadden naast punten die reeds genoemd zijn bij de positieve- en verbeterpunten betrekking op de verdeling van koop- en sociale huurwoningen en het invullen en/of toevoegen van groenstroken achter de huizen aan de Pastoor Smitsstraat. 

Naar aanleiding van de gemaakte opmerkingen onderzoekt de gemeente de komende tijd hoe het plan verbeterd kan worden. Op voorhand is al wel duidelijk dat niet iedereen hetzelfde waardeert of aangepast zou willen zien. Dat is mogelijk met de aangepaste versie ook het geval. 

Bijlage: Mentimeter

Waar denkt u als eerste aan bij de woorden 'modulaire woningen'?

  • Klein
  • Tijdelijk en basiskwaliteit
  • Prefab
  • Ik hoop op een snel op te zetten woning die betaalbaar is voor starters eventueel huur of koop.
  • Tijdelijk
  • Simpel
  • Kant en klar
  • Snel te realiseren woningen
  • Snelgebouwd
  • Blokkendoos. Snelbouw. Prefab
  • Kleine woningen
  • Prefab woningen, houtskeletbouw, snelle bouwmethode
  • De meeuw
  • Snel bouwen
  • Verplaatsbare woningen
  • Woningen opgebouwd uit elementen. Medebewoner: nog helemaal niks
  • Snel te realiseren woningen
  • Klein tijdelijk
  • Snel te plaatsen, simpel, uitbreidbaar. Tijdelijk en eenvoudig te plaatsen
  • Niet duurzaam.
  • Woningen om in te wonen
  • Tijdelijk in eerste instantie, snel bouwen, gaat nooit meer weg
  • Blokkendoos
  • Simpel, vlug
  • Deels voorbereid in de fabriek waardoor snel geplaatst
  • Mobiel/verplaatsbaar/tijdelijk
  • Blokkendoos samengesteld
  • Prefab
  • Tijdelijke woningen
  • kant en klare prefab woningen die snel gerealiseerd worden.
  • Tijdelijk Flexibel Snel te realiseren
  • Woningen zonder ingewikkelde bouwvergunning
  • Snelle bouw
  • Voor welke doelgroep
  • Kant en klaar woningen
  • Snel te bouwen woningen, waarbij panelen van tevoren zijn gemaakt
  • Tijdelijk
  • Permanent hoge kwaliteit
  • Tijdelijke woningen
  • Energiezuinig woningen houtskeletbouw
  • Snelle bouw
  • Prefab woningen
  • Afhankelijk van wens
  • Vooraf gemaakte woningen in fabriek, in elkaar te zetten
  • Snelle bouw
  • Prefab
  • Woningen die snel te bouwen zijn
  • Flexibel
  • Vluchtelingenhuisvestingscontainer
  • Hoeveel woningen kunnen er in dit plan
  • Eindelijk nieuwe huizen!
  • Open structuur
  • Veel groen
  • Eindelijk nieuwe huizen
  • Speeltuin
  • Ziet er goed uit, veel groen en ruimte voor de kinderen om te spelen
  • veel groen en speelgelegenheid
  • Hopelijk betaalbare woningen voor de jeugd in Olland
  • Waarom 70% huur in een dorp waar die vraag laag is
  • De woningen aan de pastoor Smitsstraat met de tuin laten grenzen aan de locht, zodat iedereen een open groene ruimte behoud (ook de huidige bewoners)
  • Te weinig parkeerplaatsen
  • De woningen aan de Pastoor Smitsstraat juist met de tuin aan de locht leggen, zodat ook de huidige bewoners hun groene, open ruimte behouden en niet tegen de nieuwe huizen aankijken

Wat spreekt u aan in het plan?

  • Het groen
  • Veel groene ruimte
  • Veel groen
  • Veel ruimte voor groen
  • Veel groen
  • De kleine woonvormen
  • De ruimtelijkheid en het groen
  • Behoud van de bomen en de locht
  • Goede opzet, blijft redelijk groen
  • Dat er woningen komen
  • Verdeling huur, koop
  • Behoud van de Locht en de oude bomen. Duaal gebruik van de ruimte voor wonen en water.
  • Ruimte om te spelen
  • Mooie woningen
  • Koopwoningen
  • Locht blijft als straat behouden
  • Uitbreiding van de buurt
  • Buurtgroep met centrale wadi
  • Ook kans voor starters
  • dat er iets gaat gebeuren
  • Behoud van het groen
  • Rekening met ruimte en groen. Rekening met mix sociaal en koop. Nog een speeltuin erbij
  • Het 'parkgevoel' met veel ruimte groen, water en spelen
  • wateropvang
  • Groen met water en centraal gelegen
  • Globaal dus geen idee. Meer info om een goede reactie te kunnen geven
  • Groen met water. Speelgelegenheid voor kinderen.
  • Groen met bloemetjes
  • Eindelijk nieuwe huizen. Mooi plan!
  • Behoud van 'de locht'
  • Meer woningen voor mensen uit Olland hopelijk ook voor jeugd
  • Op zich leuk plan
  • Openheid gebied
  • Ook goed voor de starters
  • Blij dat er vooruitgang komt, ziet er groen uit. Goed dat de mix er is en dat het langdurig en duurzaam gebouwd wordt. Fijn dat de Locht zelf gespaard blijft
  • sociaal, huur en koop
  • Sociale bouw
  • Plek voor koop
  • Groene ruimte. Snel bouwen!!
  • Behoud van het wandelpad op de Locht
  • Parkeren bij de woning

Zijn er suggesties of verbeterpunten voor het plan?

  • Weinig voor het eigen Olland
  • Woningen niet direct achter de huidige woningen
  • Wordt er ook gedacht aan energieneutrale woningen?
  • Ik hoop dat het aan de woningvraag voldoet
  • Wordt er ook rekening gehouden met toekomstige uitbreiding aan de overzijde van de Locht?
  • Betere ontsluiting, voldoende parkeergelegenheid. Is de eigen ruimte af te bakenen? Zeker bij de sociale huurwoningen.
  • Inspraak van aan wonende
  • Duidelijk aangeven hoe het gebied/terrein achter de huidige woningen ontwikkeld wordt?
  • Betaalbaar voor starters
  • Meer seniorenwoningen opnemen
  • Voldoende parkeergelegenheid
  • 70% huur teveel voor de ollanders die niet ingeschreven staan
  • Veel woningen voor starters
  • Met de huidige informatie ziet het er goed uit, geen opmerkingen.
  • Waarom zijn het twee aparte plannen en niet een geheel?
  • Groen/water omwisselen met woningen achter past Smitsstraat. privacy en uitzicht van de huidige bewoners
  • Hoe zijn de huizen voor starters en gezinnen. Belangrijk voor groeien van verenigingen
  • Aandacht voor genoeg groene geluidsisolatie achter de tuinen van de Pastoor Smitsstraat. Komt er een achterpad aan kant van de tuinen van pastoor smits bij bredere waterloop?
  • Energieneutraliteit, houdt rekening met overlast van warmtepompen en dergelijke
  • Aantal woningen lijkt laag voor dit perceel.
  • kan aantal koop verhoogd ten kosten van huur bij voldoende gegadigden
  • Weinig woningen op zoveel grond in de toekomst weer geen bouwgrond over.
  • Zijn er meerdere ontwerpen om meer keuze te hebben
  • Hoeveel woningen worden huur en hoeveel koop van deze 20?
  • Ook met garage? Betaalbaarheid? Planning gereed?
  • Starters kunnen niet altijd kopen dus huur is voor sommige starters juist wel goed!

Aanpassing plan

Naar aanleiding van de gemaakte opmerkingen en suggesties is er een aangepast ontwerp gemaakt. Daarbij is de verdeling naar woningtypologieën aangepast naar meer betaalbare koopwoningen. Op kaart is te zien welk type woningen er nu in het plan staan. In totaal zijn dat er 21. Daarvan 9 voor sociale huur, 3x goedkope koop, 5x middeldure koop en 2x dure koop en 2x vrije sector. De helft van de sociale huurwoningen worden met voorrang toegekend aan mensen met een sociale binding met Olland. Ook is het gebied iets uitgebreid met het perceel achter Pastoor Smitsstraat 8C en 8D (waar de 2x vrije sector woningen komen).

De Locht Olland dec 2024
Aangepast ontwerp december 2024 na inspraak.


Nieuw ontwerp november 2024 aangepast naar aanleiding van opmerkingen en suggesties
Aangepast ontwerp december 2024 met verdeling sociale huurwoningen en koopwoningen

2e inspraak omwonenden

Tijdens een tweede omgevingsdialoog op 31 oktober 2024 is het bovenstaande aangepaste ontwerp getoond aan direct omwonenden, en is met name gesproken over de overgang van de bestaande tuinen van de woningen aan de Pastoor Smitsstraat naar de nieuwbouw. 
sfeerbeelden toekomstige situatie
Sfeerbeelden toekomstige situatie

Ontwerp omgevingsplan De Locht ter inzage

Van 21 november 2025 tot en met 2 januari 2026 ligt het ontwerp-omgevingsplan voor de geplande woningbouw aan de Locht in Olland ter inzage. De papieren versie kunt u inzien in het gemeentehuis (Stadhuisplein 1 te Veghel); u hoeft hiervoor geen afspraak te maken. Ook kunt u de stukken digitaal bekijken. 

Ontwerp omgevingsplan De Locht

Het ontwerp omgevingsplan De Locht

Inloopavonden

Op maandagavond 1 december 2025 is er een inloopavond voor bewoners van Olland geweest. Tijdens de avond zijn informatiepanelen getoond over het ontwerp van de locatie. De gemeente en woningbouwcorporatie Woonmeij waren aanwezig om vragen te beantwoorden. Op woensdag 3 december vond er een informatiemoment plaats over de juridische verwerking in het omgevingsplan voor deze woningbouw aan de Locht in Olland. Inwoners konden vragen stellen over de techniek van de geformuleerde planregels en aanduidingen op de digitale kaart.