Locatie voormalig Sportveld Boskant

Voortgang woningbouwontwikkeling voormalig sportveld Boskant

3 december 2025

Hierbij vindt u de laatste informatie over de woningbouwontwikkelingen op het voormalig sportveld in Boskant. Inmiddels is door de straatnamencommissie de naam Wolvenhoek bedacht voor dit woningbouwplan.

plankaart--Wolvenhoek-Boskant

Plankaart Wolvenhoek - Boskant

Ligging ontwikkelgebied

De ligging van het ontwikkelgebied

Ontwerp omgevingsplan voormalig sportveld Boskant ter inzage

Van 21 november 2025 tot en met 2 januari 2026 ligt het ontwerp-omgevingsplan voor de geplande woningbouw op het voormalig sportveld in Boskant ter inzage. De papieren versie kunt u inzien in het gemeentehuis (Stadhuisplein 1 te Veghel); u hoeft hiervoor geen afspraak te maken. Ook kunt u de stukken digitaal inzien

programma-Wolvenhoek

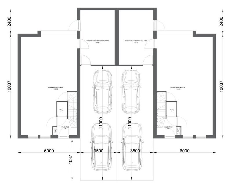
Bij nummer 1 en 2 ziet u vrijstaande geschakelde koopwoningen (4 woningen)
Bij nummer 3 ziet u Rijwoningen koop (9 woningen)
Bij nummer 4 ziet u de Rug-aanrugwoningen (16 sociale huurwoningen) 

Impressie Vrijstaand geschakelde koopwoningen 

1-Impressie Vrijstaand geschakelde koopwoningen C 2-Impressie Vrijstaand geschakelde koopwoningen C

 

Sportveld-1BG-ezgif.com-resize Sportveld-11everdieping-ezgif.com-resize

Impressie rijwoningen (koop)

3-Impressie rijwoningen B 

Sportveld-hoekwoningen3-ezgif.com-resize

Sporveld-middelstewoningen3-ezgif.com-resize

Sportveld-tussenwoningen3-ezgif.com-resize

Impressie Rug-aan-rugwoningen (sociale huur)

4-c

 LochtenSportveld-Soc.huurBG-ezgif.com-resize LochtenSportveld-Soc.huur1everdieping-ezgif.com-resize

Verslag inloopavond 1 december 2025

Op maandagavond 1 december 2025 is er een inloopavond voor bewoners van Boskant geweest. Tijdens de avond zijn informatiepanelen getoond over het ontwerp van de locatie. De gemeente en woningbouwcorporatie Woonmeij waren aanwezig om vragen te beantwoorden. De belangrijkste vragen waren:

  1. Wat gaan de woningen kosten? 
    • De huurwoningen (Woonmeij): De precieze huurprijzen zijn nog niet bekend. Wel is bekend dat ze onder de huurgrens sociale huur komen te liggen. Die is (december 2025) € 900,07.
    • De koopwoningen: Daar kunnen we nu nog geen prijs voor afgeven. Wel uiteraard welke categorieën het worden (staat ook al op de posters). Het idee is om later, als dat aan de orde is, een informatie-dag of -avond te organiseren om de mensen te informeren.
  2. Wanneer kan ik me inschrijven? 
    • De huurwoningen (Woonmeij): inschrijven bij Thuispoort is al mogelijk (algemeen) en straks ook voorwaarde voor toekenning van een woning.
    • De koopwoningen: Dat is nog niet aan de orde.
  3. Kunnen mensen met een sociale binding / afkomstig uit het betreffende dorp zelf, voorrang krijgen?
    • De huurwoningen (Woonmeij): 50% van de woningen van het Sportveld zullen worden aangeboden met een lokale voorrangsregeling. De selectie vindt plaats op basis van reguliere inschrijftijd. Op het moment dat 50% niet gehaald wordt, wordt regulier verhuurd. Inschrijven als woningzoekende in Thuispoort is een voorwaarde. De koopwoningen: het is vooralsnog niet toegestaan ‘eigen’ inwoners voorrang te geven zolang de gemeente dit niet heeft vastgelegd in een Huisvestingsverordening (die heeft de gemeente nog niet). Conform een raadsmotie uit 2021 verzoeken we tezijnertijd de bouwers van de koopwoningen om de publicatie over de woningen eerst te plaatsen in de lokale kranten. Deze publicatie wordt minimaal één maand geplaatst voordat het project breder in de verkoop gaat.

Op woensdag 3 december is er een informatiemoment geweest over de juridische verwerking in het omgevingsplan voor deze woningbouw aan het voormalig sportveld in Boskant. Het ontwerp omgevingsplan ligt nu ter inzage.

Ontwerp omgevingsplan voormalig sportveld Boskant ter inzage

Van 21 november 2025 tot en met 2 januari 2026 ligt het ontwerp-omgevingsplan voor de geplande woningbouw op het voormalig sportveld in Boskant ter inzage. De papieren versie kunt u inzien in het gemeentehuis (Stadhuisplein 1 te Veghel); u hoeft hiervoor geen afspraak te maken. Ook kunt u de stukken digitaal inzien

Verslag inspraakavond 11 december 2024

Op 11 december 2024 is een tweede informatieavond geweest, dit keer voor de mensen in de buurt. Tijdens deze avond is het aangepaste ontwerp besproken. Over het algemeen vonden de aanwezigen het aangepaste plan een mooi plan. 

Er zijn tijdens deze inspraakavond opmerkingen gemaakt over het parkeren, het groen, de ligging van de wadi’s, de woningen en het bouwproces. Deze zaken worden uitgezocht en/of uitgewerkt voor zover mogelijk.

Voor wat het bouwproces betreft: een groot deel van de woningen wordt modulair gebouwd, en dus grotendeels voorbereid in de fabriek. De werkzaamheden die ter plaatse moeten gebeuren zijn daardoor een stuk minder dan normaal het geval is.

Ook is het aspect van sociale binding voor de woningen aan bod geweest. De helft van de sociale huurwoningen wordt met voorrang toegekend aan mensen met een sociale binding met Boskant. Voor de koopwoningen zal eveneens worden gekeken of en hoe voorrang gegeven kan worden aan mensen met een sociale binding met Boskant.

sfeerbeelden toekomstige situatie
Sfeerbeelden toekomstige situatie 

Aangepast ontwerp

De omgevingsdialoog heeft geresulteerd in een aangepast ontwerp. Vooral de verdeling naar woningtypologieën is aangepast naar meer betaalbare koopwoningen. Op kaart is te zien welk type woningen er nu in het plan staan. De helft van de sociale huurwoningen wordt met voorrang toegekend aan mensen met een sociale binding met Boskant. In het aangepaste ontwerp staan nu 16 sociale huurwoningen, 8 middeldure koopwoningen en 2 vrije sectorwoningen ingetekend.

Aangepast ontwerp december 2024 na inspraak
Aangepast ontwerp december 2024 na inspraak

Aangepast ontwerp december 2024 
Aangepast ontwerp december 2024 met verdeling sociale huurwoningen en koopwoningen

Inmiddels wordt door de eigenaren van het aangrenzende perceel ook gekeken naar de bouw van enkele woningen op hun eigen perceel. Er wordt daarbij gezocht naar een logisch doorlopend ontwerp.

Verslag omgevingsdialoog 28 februari 2024

Inhoudsopgave

1. Inleiding

1.1 Aanleiding

De gemeente Meierijstad wil samen met woningbouwcorporatie Woonmeij modulaire nieuwbouwwoningen realiseren op het voormalige Sportveld in Boskant. Het gaat zowel over koop- en sociale huurwoningen. De woningen worden omgeven door bestaand en nieuw groen. Het is een landelijke locatie en sluit goed aan op de huidige bebouwing in Boskant.
De bewoners van Boskant zijn per brief ingelicht over het voornemen om op het voormalige Sportveld woningen te realiseren. Onderdeel van het proces is dat de gemeente in gesprek gaat met omwonenden. De omgevingsdialoog is hier onderdeel van.

1.2 Omgevingsdialoog

Een omgevingsdialoog is een dialoog tussen een initiatiefnemer en omwonenden en/of andere belanghebbenden van een ruimtelijk plan. Deze dialoog kan plaatsvinden in bijvoorbeeld een zaal, aan de keukentafel en/of online. Een omgevingsdialoog maakt deel uit van het totale proces van planvoorbereiding.
Met de omgevingsdialoog voor Sportveld in Boskant worden omwonenden geïnformeerd over de plannen van de gemeente Meierijstad en krijgt gemeente Meierijstad inzicht in de wensen, belangen en bezwaren van de omgeving. De gemeente Meierijstad kan deze betrekken in het verdere ontwerp van het plan.
Op 28 februari 2024 heeft de eerste informatieavond plaatsgevonden. Tijdens deze informatieavond is het plan toegelicht, en konden bezoekers verdiepende vragen persoonlijk stellen. Tijdens de avond waren zo’n 100 bezoekers aanwezig.
Tijdens deze avond zijn met een digitale tool (Mentimeter) de eerste vragen aan de bezoekers gesteld, en antwoorden gegeven en kort besproken. De resultaten van de Mentimeter zijn weergegeven in Bijlage 1.
Om belanghebbenden en belangstellenden verder goed te informeren en eenieder de kans te geven om in alle rust een mening te geven over het plan is ook gebruikgemaakt van een online participatietool (Maptionnaire) waarin het plan toegelicht is, meningen gedeeld konden worden en vragen konden worden gesteld.
In dit verslag zijn de resultaten weergegeven van deze participatieronde.

2. Maptionnaire

2.1 Onderdelen vragenlijst participatietool

De vragenlijst in de participatietool was opgedeeld in een aantal delen:

  • Gegevens respondent. Aan respondenten is gevraagd wat hun postcode is en wat hun relatie is tot het plan (omwonende Dorpskern Boskant, omwonende buitengebied Boskant, of niet wonend in Boskant). De reacties zijn anoniem verwerkt in deze rapportage.
  • Uw mening over doelgroep en type woningen
  • Toelichting op het plan. Met downloadlink naar de presentatie van de informatieavond. 
  • Mening over het plan.Hier konden respondenten een reactie geven op het plan door middel van het geven van een reactie op een plattegrond van het plan.
  • Afsluiting. Hier konden respondenten algemene opmerkingen en vragen delen. Tenslotte kon men aangeven als ze het verslag digitaal wilde ontvangen en kon met hun contactgegevens achterlaten.

2.2 De respons

Tussen 28 februari en 13 maart 2024 konden respondenten de online omgevingsdialoog openen. De vragenlijst is beschikbaar geweest voor iedereen. De link heeft in de informatiebrief en op de website van de gemeente Meierijstad gestaan. Ook is de link in de plaatselijke krant verschenen. In het totaal hebben 115 (verschillende) respondenten de digitale omgevingsdialoog bezocht.
Respondenten is gevraagd welke relatie ze met het plan hadden. Deze vraag kon met meerdere antwoorden beantwoord worden:

  • 39 respondenten reageerden vanuit de dorpskern van Boskant
  • 28 respondenten reageerden vanuit het buitengebied van Boskant
  • 10 respondenten reageerden met: “Ik woon niet in Boskant”

Niet iedereen die de site heeft bezocht, heeft de enquête ingevuld.
Bij vragen kon men NieuwBlauw bellen of mailen. Eén respondent heeft hier gebruik van gemaakt. Deze respondent had een reactie die langer was dan het aantal tekens dat was toegestaan in de online tool. Na telefonische contact is dit direct aangepast. De respondent heeft hierna zijn reactie volledig kunnen achterlaten. De respondent heeft aangegeven blij te zijn met het snelle handelen en oplossen van het probleem. Er zijn geen verzoeken ontvangen om de vragenlijst op papier te ontvangen.
Tijdens de participatieavond konden vragen gesteld worden. Op al deze vragen is antwoord gegeven. Er zijn geen vragen achtergelaten op deze avond

Eén respondent heeft in de maptionnaire een link naar zijn eigen site achtergelaten. Via deze link is het volgende document te vinden: “Commentaar op het plan voor woningbouw op het voormalige sportveld Boskant” (Bijlage 2). In deze bijlage is de versie opgenomen die op 19-3-2024 online stond.

3. Toelichting op het plan

3.1 Stedenbouwkundige structuur

De planlocatie ligt aan de noordkant van Boskant, op het oude sportveld. Aan de noord- en westzijde liggen boomgaarden en landbouwgrond, en aan de oost- en zuidzijde ligt de buurt Kremselen. Het projectgebied wordt omringd door bomen en struiken, waardoor de groene sfeer intact wordt gehouden. Deze groene omgeving staat centraal in het ontwerp.

In het ontwerp komen sociale huurwoningen in het noordelijk deel en koopwoningen in het zuidelijke deel. Alle woningen hebben een dorpse uitstraling, en passen wat opzet betreft bij de structuur van Boskant. Het groen eromheen is openbaar. Hiermee is deze nieuwe buurt een aanvulling voor alle inwoners van Boskant.

De huurwoningen hebben hun voordeur aan de buitenkant van de 'cirkel'. Aan de binnenkant zijn er terrassen, met een verhoogde groenwal als afscheiding. Rondom de woningen ligt de groene omgeving met wandelpaden. In het groen is daarnaast ruimte voor sport, spel, ontmoeting en waterberging. De auto’s van deze woningen worden geparkeerd op een centrale parkeerplaats.

De koopwoningen zijn geschikt voor verschillende doelgroepen. De vrijstaande hoekwoningen zijn wat groter. Achter deze woningen ligt een doodlopende parkeerstraat. Parkeren gebeurt op eigen terrein.

Hieronder staan enkele beelden van de beoogde sfeer, en een doorsnede van het beoogde hoogteverschil in het gebied.

Deze doorsnede over het plan geeft de hoogteverschillen in het gebied weer. De maten eronder geven de breedte van de woningen en openbare ruimte aan. De maten zijn indicatief.

Levensbestendige wonigen geschakeld aan het groen - één bouwlaag met kap

Groene binnenruimte incl. waterberging

Modulaire woningen in open omgeving

Priveruimte en afscheiding richting het groen

Levensloopbestendige woningen

Groene binnenruimte met hoogteverschillen

Groene binnenruimte afscheiding

Bouwvolume

Bouwvolume2

Groene erfafscheiding naar de binnenruimte

Overgang van weg Parkeren naar woongebied

Referentiebeelden (bron: NieuwBlauw)

Grootte priveruimte groene erafscheiding en hoogteverschil

Groene binnenruimte

Diverse woningindelingen

Groene wanden bomen respecteren handhanven

Gebruik van natuurlijke afscheidingselementen

Bouwvolume groene lage afscheiding

Referentiebeelden (bron: NieuwBlauw)

Deze doorsnede over het plan geeft de hoogteverschillen in het gebied weer. De maten eronder geven de breedte van de woningen en openbare ruimte aan. De maten zijn indicatief.

Doorsnede plangebied Bron NieuwBlauw

4. Reacties op het plan

4.1 Vragen over de woning

Aan de respondenten zijn een aantal vragen gesteld.

  1. Aan wat voor doelgroep is volgens u behoefte in Boskant? (Starters 1 en 2 persoonshuishoudens, gezinnen, senioren 1 en 2 persoonshuishoudens)
  2. Aan wat voor type woning is volgens u behoefte in Boskant? (Appartementen, grondgebonden woningen, grondgebonden woningen levensloopbestendig)

In welke prijscategorie is behoefte aan koopwoningen in Boskant? (Goedkope koop onder circa €275.000, middeldure koop onder circa €390.000 en dure koop boven de €390.000)

4.1.1 Aan wat voor doelgroep is volgens u behoefte in Boskant?

Op de vraag “Aan wat voor doelgroep is volgens u behoefte in Boskant? (Maximaal drie antwoorden mogelijk)” is 130 aantal keer antwoord gegeven. Onderstaande grafiek geeft weer hoe vaak elk antwoord is aangeklikt.

Aan wat voor doelgroep is volgens u behoefte in Boskant

4.1.2 Aan wat voor type woning is volgens u behoefte in Boskant?

Op de vraag “Aan wat voor type woning is volgens u behoefte in Boskant? (Meerdere antwoorden mogelijk)” is 98 aantal keer antwoord gegeven. Onderstaande grafiek geeft weer hoe vaak elk antwoord is aangeklikt.

Aan wat voor type woning is volgens u behoefte in Boskant

4.1.3 In welke prijscategorie is behoefte aan koopwoningen in Boskant?

Op de vraag “In welke prijscategorie is behoefte aan koopwoningen in Boskant? (Meerdere antwoorden mogelijk)” is 98 aantal keer antwoord gegeven. Onderstaande grafiek geeft weer hoe vaak elk antwoord is aangeklikt.

In welke prijscategorie is behoefte aan koopwoningen in Boskant

4.2 Over het ontwerp

Respondenten hadden de mogelijkheid op 3 soorten icoontjes op de kaart te plaatsen en te voorzien van een opmerking. Met verplaatsbare icoontjes konden respondenten de volgende plekken op de kaart aanwijzen:

  • Positieve plek: een plek in het ontwerp waar de respondent tevreden over is (4.2.1).
  • Verbeterplek: een plek in het ontwerp waar de respondent kansen ziet voor verbetering (4.2.2).
  • Suggestie: een plek in het ontwerp waar de respondent een suggestie voor heeft (4.2.3).

In de kaarten hierna is met een nummer op de kaart aangegeven op welke plek in het plan de opmerking betrekking heeft.

4.2.1 Positieve plekken

Poaitieve plekken

Toelichting respondenten bij het aanwijzen van een positieve plek

Er zijn in totaal 45 positieve plekken aangewezen. Hierbij zijn 44 reacties achtergelaten. We hebben ze per deelgebied verzameld.

Nummer 1
  • Veel groen
  • Ruime opzet, veel groen
  • Vele groen in het plan inclusief de waterpartij is positief
  • Geen autoverkeer
  • Een pad in plaats van een weg
  • Ruime groenvoorziening rondom de sociale woningbouw is positief: niet meer dan dit aantal woningen bouwen.
  • Heel positief dat er groen bewaard blijft op het oude voetbalveld, dus dat niet alles vol gebouwd wordt.
  • Positief is dat er woningen gebouwd worden in Boskant. Boskant mag zeker groeien naar minimaal 2000 of meer inwoners (leefbaarheid vergroten). Er is ruimte genoeg waar woningen gebouwd kunnen worden in Boskant.
  • Veel groen en bebossing is mooi.
Nummer 2
  • MOOI
  • Leuk
  • In een cirkel met een binnenplaats achter de woningen, biedt een speels karakter. Stedenbouwkundig mooi plan. Wateropberging zeer belangrijk i.v.m. Dommel en vaker hoge waterstanden in de toekomst. Groen en klimaat adaptief, helemaal top.
  • Op deze manier leuk dat de woningen in een cirkel staan met de voorzijde naar buiten. Uitnodigend om eens een rondje omheen te wandelen en toch een speels karakter.
  • De locatie is perfect voor woningbouw. Het aantal woningen is te weinig voor deze locatie. Plaats hier ook een rij van 15 woningen voor starters/gezinnen.
  • De ronde setting met het groen erom heen vind ik erg positief. Gelukkig niet te vol gebouwd. Ik zou voor houtbouw gaan. Als je het over duurzaam hebt, dan is dat de toekomst (woon zelf ook in een houten huis). Het parkeren apart van de huizen is erg goed. Dat houdt de natuurlijkheid in stand.
  • Kleinschaligheid, geen drukke volle woonwijk.
  • Groen in de buurt.
  • Toch wat privacy, maar niet al te grote tuin.
  • Gezamenlijk terrein. Beste is ok dat de buurt het onderhoud zelf doet.
  • In zijn algemeenheid een mooi, groen plan.
  • De centrale groenvoorziening.
  • Mooie veilige omgeving door de natuur en de autovrije zone.
  • Locatie is prima, bouw naast de sociale huurwoningen meer woningen op dit perceel. In enquête van dorpsraad van 2021 is uitslag dat er een grote behoefte is aan koopwoningen, vooral starters en gezinnen. Ook seniorenwoningen was veel vraag naar. Gebruik de ruimte optimaler voor aantal woningen.
  • Prima opzet, speels gesitueerd.
  • Mooie groene opzet van sociale woningbouw zonder schuttingen in t groen.
  • Inpandige berging i.p.v. losse schuurtjes.
  • Natuurlijke omgeving.
Nummer 3
  • Super goed. De auto's op 1 plek. Zo wordt het bouwen qua kosten een stuk aantrekkelijker.
  • Omdat het "autoloos" wordt, is het wijkje erg veilig.
  • Auto's niet voor het huis maar bij elkaar op een parkeerplaats is heel positief.
  • Parkeren op een centrale plek, waardoor blik gecentraliseerd wordt en uit het zicht van de woningen, ook door de ontsluiting richting de populierenlaan. Bovendien hierdoor ook speelmogelijkheden in het terrein zonder het gevaar van auto's.
Nummer 4
  • Grote kavel.
  • Koop is top.
  • Parkeren op eigen perceel.
  • Dat er koopwoningen gebouwd worden In Boskant. Enquête dorpsraad Boskant van 2021 geeft aan dat er veel vraag is naar koopwoningen voor starters, senioren en gezinnen. In Boskant is behoefte aan jonge gezinnen die een woning kunnen kopen. Weer 10 jaar geen woningbouw is funest voor het dorp.
  • Goed dat in het plan in ieder geval enkele koopwoningen zijn opgenomen.
  • Koopwoningen.
  • Dit zijn een van de type woningen waar Boskant behoefte aan heeft. Koopwoningen voor starters en jonge gezinnen, jongeren uit Boskant willen koopwoning geen huurwoning. Nu moeten ze verhuizen naar bv Veghel waar genoeg gebouwd wordt en ze wel een huis kunnen kopen.
  • Het type huizen en de manier van bouwen inclusief het parkeren aan de achterkant, dus auto's uit het zicht spreekt me aan.
  • De positie van de vrijstaande koopwoningen.
  • Vrijstaand mooie locatie.
  • Dat hier levensloopbestendige woningen komen.
Nummer 5
  • Ligging en aanwezigheid van een wadi.
  • Iiris phone after zoom.

4.2.2 Verbeterkansen

Verbeterkansen

Toelichting respondenten bij het aanwijzen van een verbeterkans

Er zijn in totaal 49 verbeterkansen aangewezen. Hierbij zijn 49 reacties achtergelaten. We hebben ze per deelgebied verzameld.

Nummer 1
  • Smallere groenstrook, zodat er ruimte komt om meerdere woningen te plaatsen op deze locatie.
  • De afstand tot de boomkwekerij is te klein. Bomen worden met bestrijdingsmiddelen bespoten. Opkopen en extra groen van maken.
  • Waarom bij de levensloopbestendige woningen wel bij de huizen parkeren?
  • Minder groen, Boskant heeft ‘onderhoud 3’, dit betekent dat gemeente groenonderhoud beperkt is. Na 2 jaar verwacht ik met sociale huurwoningen dat groen niet wordt bijgehouden. Groenstroken zijn ook erg breed ingetekend.
  • De Eikenstraat is op zichzelf al een overgang naar bebost/ landelijk gebied. Waarom hier nog zo ver vanaf gaan zitten met de bebouwing.
Nummer 2
  • Meer woningen op deze grote locatie, zowel sociale huurwoningen als ook koopwoningen (starters en gezinnen), verhouding is nu totaal verkeerd. Te veel sociale huurwoningen.
  • Gebruik minder groen, over 10 jaar ligt dit er waarschijnlijk onverzorgd bij. Zeker als de woningen sociale huurwoningen zijn.
  • Er is nergens gelegenheid voor bezoek om te parkeren. Is hier over nagedacht of moet dat langs de weg aan de Populierenlaan?
  • Het is in Boskant in de avond en nacht lekker donker. Ik zou beperking van verlichting aan de huizen in acht houden. Dit geldt ook voor eventuele lantaarnpalen. Maak er maar een mooi natuurlijk plekje van. Daar is volgens mij genoeg animo voor.
  • Maximaal 3 bouwlagen hoog.
  • Wellicht de moeite waard om research te doen naar duurzame bouwmaterialen zoals JBF-bouwblokken of duurzame, brand- en rotbestendige biofiber isolatieplaten. Dit kan leiden tot N2 negatieve bouw. 
  • Geef (oudere) inwoners van Boskant de mogelijkheid om in deze nieuwe wijk te wonen door in te zetten op levensloopbestendige (koop)woningen. Doorstroming vanuit andere woningen is ook een oplossing voor het woningtekort!
  • Wij vinden dat er sprake is van ongelijke mix van sociale huur en koop. Een suggestie hierbij is om een aantal sociale huurwoningen minder op te nemen in het plan, hiervoor in de plaats huur- en of extra koopwoningen ter beschikking te stellen. Dit zodat de mix wat logischer verdeeld is.
  • Sociale huurwoningen t.o.v. koopwoningen zijn te groot ingetekend. Er is op deze locatie ruimte in overvloed voor meer woningen te bouwen (kostenbesparing). Mijn verbetervoorstel is dat er naast de 18 woningen ook een aantal koopwoningen gebouwd worden (woningen waar in Boskant behoeft naar is).
  • De manier van het plaatsen van de huizen zorgt ervoor dat de ruimte niet optimaal gebruikt wordt en daardoor te weinig huizen worden gebouwd. We hebben ontzettend veel groen in de omgeving waar de mensen sowieso gebruik van kunnen maken om te wandelen, fietsen e.d.
  • Te weinig privé tuin en geen bergschuur terwijl er in het plan meer dan ruimte genoeg voor handen is. We zien bij het voormalige kerkgebouw hoe een te kleine privétuin frustrerend werkt bij de bewoners terwijl er ruimte genoeg is.
  • De huurwoningen qua massa 1 laag i.v.m. overgang van het landelijk gebied.
  • Te centraal gelegen woningen. Bovendien zonde om hier enkel sociale huurwoningen te bouwen op een perceel van 10.000 m2. De sociale huur heel ruimtelijk en de koopwoningen tegen elkaar geduwd.
Nummer 3
  • Het wandelpad dat hier getekend is gaat door de overstort van "onze" wadi. Dat is niet handig omdat die regelmatig nat en erg glibberig is. Wij denken dat het beter is om het "wandelpad" aan de andere zijde van de wadi te laten lopen. Zo hebben huidige aanwonenden ook geen last van de wandelaars.
  • Geen wandelpad aanleggen naar reeds bestaande gebied van de wadi. Er zijn voldoende mogelijkheden om te wandelen. De wadi met bijbehorende grond is juist bedoeld voor rust en vogelgebied. Hier komen nu reeds bijzondere vogels zoals ook een ooievaar. Tevens lijkt het ons een mooie natuurlijk buffer.
  • Het belangrijkste vinden wij een goede afscheiding. Het minimale groene strookje dat er nu staat is bij lange na niet afdoende. Onze inziens dient deze afscheiding te bestaan uit een combinatie van: - Wal - Forse, stevige, hoge strook.
  • Geen extra wandelpaden toevoegen en deze dus niet direct verbinden met de nieuwe wijk, maar alleen het betreffende wandelpad intact laten. We voorzien dat dit dan veel meer een hangplek gaat worden.
  • Geen doorsteken maken naar de bestaande wadi. Die heeft nu geen wandelpaden eromheen en dat is ook nooit de bedoeling geweest. Het moest wil grasland blijven met een natuurwaarde. Niet annexeren en opofferen aan honden uitlaat/wandelgebied maar laten zoals het is. Nu al - door ondanks de afspraken wél te maaien komen er meer honden. De Eikenstraat wordt toch ook niet geplaveid of geasfalteerd. Respect voor de natuur zei de gemeente toch?
  • Verder maken wij bezwaar tegen het pad wat getekend is bij de bestaande wadi vanuit de parkeerplaatsen. Het terrein met wadi waar wij op uitkijken is gekenmerkt als wilde planten gebied en niet als ontsluitingsroute. Dit zal de natuurwaarden in het gebied schade toebrengen.
Nummer 4
  • Er is relatief veel vraag naar koop voor starters/ lagere prijsklasse. Hierdoor zou je ook weer duurdere woningen vrij krijgen op andere plekken. Ik vind het relatief veel sociale huur vs. koop.
  • Losse berging voor fietsen.
  • Boskant zelf heeft behoefte aan seniorenwoningen voor eigen bewoners. Dit bevordert doorstroming en biedt dus ook een oplossing voor woningtekorten. Door deze plek weg te geven aan sociale huurwoningen worden Boskantse ouderen buitenspel gezet.
  • Om het landelijke karakter te behouden graag 1 bouwlaag.
  • Meer woningen op deze locatie. Er is volop ruimte om meer woningen te plaatsen waarbij groenelement toch blijft bestaan. Verbeterpunt, meer woningen en dan vooral koopwoningen.
Nummer 5
  • Veel parkeren.
  • De parkeerplaatsen grenzen aan onze tuin. Komt hiertussen een soort van afscherming? Dit i.v.m. overlast van de verlichting van de auto's die daar dag-in dag-uit gaan parkeren.
  • Laadpalen voor elektrische auto’s. Doordat er 1 parkeerplaats is het niet mogelijk je eigen voertuig op te laden met je eigen zonnepanelen. Wat extra kosten voor je meebrengt.
  • Geclusterd parkeren geeft overlast voor direct omwonenden, zoals inschijnend licht van koplampen, geluid van verkeersbewegingen, dichtslaande portieren etc. Hiervoor zijn maatregelen nodig, zoals bv een groene wal tussen plangebied en tuinen van omwonenden.
  • Wellicht te weinig parkeerruimte.
  • Om de parkeerplaats af te scheiden graag een grondwal aanleggen.
  • Meestal is het aantal parkeerplaatsen te beperkt. Het gevaar bestaat dat ook mensen uit de aanliggende wijk hier gaan parkeren of auto's langdurig stallen. Er is geen alternatief voor de bewoners, of te ver weg. Minimaal 1 persoonlijke parkeerplek is wenselijk.
  • Geclusterd parkeren aan de zijde van de bestaande bebouwing geeft overlast van inschijnende koplampen, geluid van verkeersbewegingen, ontstaan hangplek etc. Zorg voor voldoende afscherming van zicht/geluid door bv een groene wal of een muur tussen plangebied en tuinen omwonenden.
  • Het plan grenst direct aan de tuinen van de bestaande wijk. Om de privacy van de omwonenden te waarborgen is een dichte wintergroene afscheiding of een ander soort afscheiding van voldoende hoogte noodzakelijk.
  • De parkeerplaatsen zijn ongelukkig gesitueerd. Allereerst omdat ze vlak tegen de bestaande wadi en omliggende gronden zijn geplaatst. Bij het binnenkomen in de donkerder jaargetijden maar ook s ‘avonds schijnen de koplampen van de auto's in de omliggende tuinen en huizen. Los daarvan moet ook gerekend.
  • Er ontstaat overlast van koplampen en ook motorlawaai in de aangrenzende tuinen en huizen aan de bestaande wadi. Vooral in de donkere uren. Is onacceptabel.
  • Graag hoog en dicht groen i.v.m. inkijk bestaande woningen.
  • De parkeerplaatsen zijn voor ons niet optimaal gesitueerd. Wij verwachten overlast in onze achtertuin van autoverlichting en motorgeluiden. Mogelijk kunnen voorzieningen getroffen worden om dit te voorkomen of de parkeerplaatsen ergens anders te maken. Ook lokt de afgelegen ligging uit tot vandalisme e.d.
Nummer 6
  • Hier zouden wij ook graag een soort van afscherming zien i.v.m. autoverlichting die in ons huis/tuin schijnt.
  • Kleine achtertuin voor koopwoning in landelijk gebied.
  • Achtertuin nu op noordoosten gesitueerd en door beperkte ruimte dus vermoedelijk zeer beperkt zon in achtertuin.
  • Parkeren in/ tegen achtertuin.
  • Het plan grenst direct aan privégrond/ tuinen, er is een dichte groenblijvende afscheiding (van voldoende hoogte) nodig om direct zicht op de woningen en inkijk vanuit de woningen op omliggende percelen weg te nemen.
  • De koopwoningen zijn wel heeeeeeel klein. Zeker als dit nog enkel b.g.g. woningen zijn.
Nummer 7
  • Het verkeersarm maken van de Kremselen, middels afsluiten of een richting maken. Daarnaast door werkelijk te handhaven.

4.2.3 Suggesties

Suggesties

Toelichting respondenten bij het aanwijzen van een suggestie

Er zijn in totaal 45 suggesties aangewezen. Hierbij zijn 45 reacties achtergelaten. We hebben ze per deelgebied verzameld.

Nummer 1
  • Meer groen, inpakken.
  • 80 procent van dit plan wordt nu sociale huur. In een kleine, landelijke kern als Boskant is juist vooral behoeft aan sociale koop en betaalbare koop t/m middensegment. Zet juist in op sociale koop voor starters en senioren. Sociale huur helpt zeker anderen, maar niet Boskanters.
  • Ik woon zelf in de eikenstraat en verwacht eigenlijk dat dit een zandpad blijft.
  • Voorrang voor thuiswonende starters wonend in Boskant. Vooral voor huurders.
  • Meer koopwoningen om bewoners Boskant de gelegenheid te geven in Boskant te blijven. Hiermee ontstaat ook het gemeenschapsgevoel dat de opzet met een gemeenschappelijke groene binnenplaats beoogt. Toewijzing door de woningstichting betekent ook voornamelijk mensen zonder enige binding met Boskant.
  • Zicht op de woningen en vanuit de woningen niet volledig afsluiten door groen zodat het plan de nodige openheid krijgt.
  • Hier het parkeren van de huurwoningen situeren en goed ingepakt door aarden-wal/groen.
  • Appartementen die de hoogte in gaan. Hier kan niemand bezwaar op maken betreffende inkijk in zijn woning/tuin. Kans! Hierdoor zijn de vierkante meters grond ook beter benut qua investering.
Nummer 2
  • Langs de Populierenlaan en Kremselen loopt geen voetpad. Op zich geen probleem, maar verkeer zal daar toenemen en er wordt nog best hard gereden ondanks de drempels. Veilige wandelpaden richting het centrum van het dorp zouden wenselijk zijn.
  • Gebruik deze locatie voor woningbouw. Eigenaar van deze grond heeft meerdere malen aangegeven bij gemeente dat hij open staat voor woningbouw op deze locatie.
  • Boskant mag zeker groeien om leefbaarheid te behouden (school, verenigingen, enz.), Het realiseren van plan Elsen pad had een vertraging van meer als 7 jaar. Laat dit niet wederom gebeuren voor Boskant. Meer woningen voor bestaansrecht van dorp.
  • Prima locatie voor extra woningbouw. Gebruik deze mogelijkheid om woningen te bouwen. Eigenaar heeft diverse malen aangegeven bij gemeente dat hij openstaat om over een plan na te denken om hier woningen te bouwen. Suggestie is meer koopwoningen bouwen in Boskant
Nummer 3
  • Stapstenen door de vallei.
  • Geen suggestie maar een vraag: blijft de huidige beplanting rondom de huidige wadi bestaan? Blijft de huidige wadi intact?
  • Een vraag aan het einde van de infoavond was of er roofvogels in het gebied zijn. Wij kijken vanuit onze huiskamer en tuin rechtstreeks op het nieuwe plan. De roofvogels die wij in ieder geval gespot hebben zijn buizerds, sperwers en torenvalken. Door de gemeente is hiervoor een rustpaal geplaatst.
  • In hetzelfde (beperkte) ruimtelijke gebied wordt opeens naast de extensieve woningbouw (de bestaande wijk) ook reguliere bouw ingetekend. Dit past niet in het beleid en bij de visie die Gemeente Meierijstad voor dit gebied had en al heeft ingezet met de recente bouw aan Kremselen/ Houtsebeemd.
  • Lage lantaarnpalen in de wijk - -Minder overlast + sfeervoller geheel.
  • Graag de Eikenstraat zandpad houden, zoals beloofd is door de gemeente bij de vergunningsprocedure huizenbouw Eikenstraat, Kremselen, Houtse Beemd.
  • De wandelpaden zijn er nu niet en ze moeten er ook niet komen. Er is nu maar 1 doorgang van de Houtsebeemd naar de Eikenstraat en dat is genoeg. U moet de biotoop die goed is voor veel insecten en amfibieën niet domweg verkwanselen aan wandelen en hondenuitlaat en dus ook niet doorgaan met maaien. De scheidingswal tussen de wadi en het voormalige sportveld moet veel robuuster. Betrouwbaar beleid voeren is echt nodig.
Nummer 4
  • Ik heb commentaar gegeven op het plan in een aparte notitie getiteld: "Commentaar op het plan voor woningbouw op het voormalige sportveld Boskant". Deze notitie staat op mijn website: www.kdwindturbines.nl onder het menu "No wind energy". Het gaat om negen of tien blokken van twee in een cirkel.
  • Herzie het plan zodanig dat het past in de ruimtelijke visie waarbij de door de gemeente Meierijstad ingeslagen weg van extensieve woningbouw wordt gecontinueerd. Het betreft namelijk hetzelfde ruimtelijke gebied.
  • Zorg voor lage woningbouw, indien een schuine kap dan geen vensters aan buitenzijde plan richting omwonenden.
  • Er moet natuurlijk nagedacht worden over energie en verwarming installaties. Warmtepompen, zelfs binnen de normering werken vaan verstorend voor een goede nachtrust. Is hierover nagedacht?
  • Misschien de moeite waard om groene energie gecentraliseerd op te wekken en op te slaan om zo het rendement te verhogen en de kosten voor de inwonende te drukken. Ook is het opladen van EV's met groene stroom beter te realiseren op deze manier.
  • Zorg voor lage woningen, maximaal 1,5 bouwlaag en geen dakvensters gericht op buitenzijde plan en dus richting omwonenden.
  • 25% sociale modulaire huurwoningen aan de kant waar de parkeerplaatsen ingetekend zijn. De overige ruimte bebouwen met betaalbare koopwoningen op niet te grote percelen met parkeergelegenheid.
  • Speelplek voor kinderen, niet per se op deze plek.
  • Vrije kavels zoals aan de Kremselen/ Houtsebeemd passen ruimtelijk beter op deze locatie.
Nummer 5
  • Wat betreft de parkeerplaatsen zou ik een hoge groene heg plaatsen tussen de nieuwe en de bestaande woningen.
  • Parkeerplek voor minstens 2 auto's per woning? In het geval van te weinig parkeerruimte zou je namelijk of in Boskant, voor iemand anders zijn huis moeten parkeren of aan de andere kant van het centrum bij De Vriendschap.
  • Parkeerplaats is erg groot, tegenwoordig wordt de parkeernorm van 0,6 per woning aangehouden.
  • Suggestie om de parkeerhaven wat meer te situeren naar de doorgaande weg aan de kant van de populierenlaan. Zodat dit niet direct aan de wadi grenst.
  • Twee mogelijkheden" 1. De parkeerplaats verplaatsen naar zijn spiegelbeeld op het voormalige sportveld dus naar de binnenkant van de hoek eikenstraat/populierenlaan 2. De parkeerplaats omheinen met een wal een damwand of een muur, die het licht van de koplampen tegenhoudt en het motorlawaai dempt.
  • De bestaande wadi doortrekken naar deze plek om daarmee een aantrekkelijke parkachtige binnenruimte te creëren die het bestaande woongebied (Houtsebeemd en Kremselen/ vrije kavels) verbindt met het nieuwe plan. Beter één grote plas dan versnippering.
  • Laadpalen en parkeerplaatsen voor deelauto's.
Nummer 6
  • Draai de woningen om met de achtertuin naar zuidwesten. Voorzijde woning dichter naar de straat (alleen parkeervakken ertussen) levert grotere achtertuin op en beter gesitueerd t.o.v. zon. Zou mij meer veel meer trekken.
  • Meer koopwoningen om kansen te geven aan inwoners van Boskant.
  • Een veilige en vooral overzichtelijke uitrit realiseren.
  • Appartementen voor jongeren en wellicht ouderen, zodat men elkaar kan ondersteunen. De meters worden beter benut en bovendien zitten beiden niet op een tuin te wachten. Ik vraag me af of er wel seniorenwoningen moeten komen. Voorzieningen zijn er niet meer in Boskant. Zij kunnen dan ook gebruik maken van deelauto's. Dat scheelt blik. Immers ov is er nagenoeg niet in Boskant.
Nummer 7
  • Gebruik deze locatie voor seniorenwoningen te bouwen. In Boskant is veel vraag naar seniorenwoningen.
  • Het verkeer in het Kremselen wordt steeds drukker. Het is eigenlijk alleen voor plaatselijk verkeer bestemd. Wil je draagvlak voor dit project, dan moet hier gehandhaafd worden of iets bedacht worden dat alleen plaatselijk verkeer erin kan.
  • Denk aan ontsluitingswegen en dat Kremselen slechts toegankelijk is voor bestemmingsverkeer.
  • Wij maken ons grote zorgen over het toenemende verkeer op de Kremselen. Deze weg is nu reeds alleen bestemd voor lokaalverkeer, hier wordt niet op gehandhaafd.
  • Gebruik dit stuk grasland voor seniorenwoningen (laagbouw) Sluit perfect aan bij huidige plan Kremselen Suggestie: bouw meer woningen in Boskant.
  • Twee mogelijkheden: 1. de plek verplaatsen naar zijn spiegelbeeld in het voormalige sportpark dus tegen de goed populierenlaan/eikenstraat aan 2. De huidige plek omheinen met een wal, muur of damwand die kan begroeien en die het licht en het motorlawaai dempt.

4.3 Algemene vragen of opmerkingen

Er zijn in het totaal 26 vragen gesteld of opmerkingen gemaakt. Deze zijn hieronder opgesomd per thema.

Vraag
Ontwerp als geheel
  • Houden zo, als het zo blijft vind ik het een prachtig plan.
  • Ik vind het eigenlijk een supermooi ontwerp. Complimenten.
  • Nogmaals mooi plan, echter graag wel aandacht voor het niet aansluiten van de wandelpaden met de bestaande wadi/ groengebied, parkeerplaats kleiner en voorzien van een grondwal, beperken verkeer Kremselen.
  • Zie mijn eerdere opmerking waarin verwezen wordt naar mijn commentaar in de aparte notitie: "Commentaar op het plan voor woningbouw op het voormalige sportveld Boskant" die te vinden is op mijn website: www.kdwindturbines.nl onder het menu "No wind energy".
  • Zo laag mogelijke bouw, aantal woningen beperkt. Gezien de groene en rustige omgeving.
Woningtypen
  • Gebruik enquête van dorpsraad, daarin staat vermeld waar de behoefte is voor bewoners van Boskant. Boskant mag als dorp zeker groeien naar hoger inwonersaantal, dit is van groot belang voor leefbaarheid (school, verenigingen, bedrijfsleven zoals horeca, winkels).
  • Hoe kan het dat de dorpsraad vanaf het begin betrokken is bij dit plan en er toch gekozen wordt voor 72% aan sociale huurwoningen terwijl de dorpsraad een hele andere behoefte aangeeft vanuit de vraag van de bewoners?
  • Omdat ik niet in Boskant maar in Sint-Oedenrode woon heb ik het idee dat de kans erg klein is dat ik hier een woning kan kopen. Komen er in Sint-Oedenrode eenzelfde soort woningen beschikbaar?
  • Hebben mensen uit Boskant voorrang op zowel huur, als koop? Mocht je recht hebben op sociale huur, maar sta je nog niet lang ingeschreven, heb je dan toch kans?
  • Graag hadden we gezien dat er meer kleine koopwoningen waren gerealiseerd voor Boskantse ouderen en daardoor er andere woningen vrij komen. Verder dat er voor de sociale woningen gekeken wordt naar de behoefte van Boskantse mensen. We hopen ook dat er gekeken wordt naar de soort bewoners er komen wonen zodat het in korte tijd geen verwaarloosde buurt wordt.
  • Ik denk dat er meer vraag is naar koopwoningen dan sociale huurwoningen.
  • Te weinig woningen op zo'n groot perceel. Bovendien is in Boskant weinig behoefte aan sociale huurwoningen. Om Boskanters in Boskant te houden zijn meer jongerenwoningen nodig en gezinswoningen. Dit levert weer wellicht aanwas voor het verenigingsleven. Ga ook wat meer de hoogte in. Nu is er gelegenheid voor. Niemand kan nog last hebben van de ander. De sociale huurwoningen zijn wel heel royaal opgezet, zeker t.o.v. de koopwoningen. Uiteindelijk moet de gemeenschap betalen voor sociale huur. Dit zou ook opgebracht kunnen worden door de grond beter te verdelen en dus ook te commercialiseren.
  • Voldoen aan BENG. Infocentrum duurzaam bouwen en energie voor inwoners Boskant. Waarom niet 2 laags bouwen zodat er meer mensen kunnen wonen. Kremselen is toch ook al verpest door veel te grote villa’s. Ook appartementen dus hoogbouw zou toch ook kunnen?
  • Waarom worden er meer sociale huurwoningen (75%) gebouwd t.o.v. koopwoningen (25%). Onderzoek van dorpsraad geeft aan dat er behoefte is aan koopwoningen voor starters, jonge gezinnen en seniorenwoningen in Boskant. Inwoners willen vooral koopwoningen. Wacht weer niet 10 jaar met bouwen maar ga door met nieuw bestemmingsplan te maken voor meer woningen. Bouw naar behoefte!!
  • Wij vinden eigenlijk dat sociale huur in deze vorm veel beter had gepast in het plan Pastorietuin. Op deze plek moet je vanuit het landschap kiezen voor vrijstaande meer boerderijachtige woningen, beperkt in aantal.
  • Zoals in een van de suggesties op de vorige pagina aangegeven: Echt een mooi plan, stedenbouwkundig, klimaat adaptief en ook bouwtechnisch met modulaire bouw, maar 80 procent sociale huur helpt vooral mensen buiten Boskant en de inwoners van Boskant hebben voornamelijk behoefte aan (sociale) koop voor goedkope- en middensegment, gericht op starters en senioren. De vraag is wil de gemeente met dit project focussen op inwoners van de gemeente, of inwoners van Boskant. Als alles naar Woonmeij gaat, dan helpt dat de (inwoners van) gemeente Meierijstad zeker, maar de inwoners van Boskant nauwelijks. Ik zou persoonlijk een andere verdeling aanhouden, bijvoorbeeld 30 procent sociale huur, 40 procent sociale koop en 30 procent koop middensegment. Voldoende levensloopbestendige woningen, zodat woningen van ouderen in (ruime) grondgebonden woningen ook vrijkomen voor doorstroom. Maar ook voldoende starterswoningen, een iets minder luide (en naargeestige) groep maar zeker niet minder omvangrijk.
  • Zorg ervoor dat er woningen komen waar Boskantse mensen om vragen. Dus betaalbare koopwoningen. En niet woningen voor mensen die geen binding hebben met Boskant.
Schuren
  • Komen er schuren bij?
Omliggende wegen
  • Eikenstraat:
    • De aanwonenden van de Eikenstraat willen dat de Eikenstraat een landelijke zandweg blijft, zoals destijds vastgelegd in het uitbreidingsplan Kremselen.
    • De Eikenstraat moet een zandpad blijven en er dient te worden gehandhaafd t.a.v. alleen bestemmingsverkeer op de Kremselen.
    • De Eikenstraat moet een zandstraat blijven voor het groene uiterlijk.
  • Kremselen:
    • De weg Kremselen is slechts bedoeld voor gebruik door aanwonenden. De weg wordt echter veelvuldig als sluiproute gebruikt, waardoor er te veel verkeersbewegingen zijn. De weg is daar niet voor bedoeld c.q. op berekend, waardoor gevaarlijke situaties ontstaan. Hoe wordt er voorkom dat er een nog grotere toename van verkeer gaat komen op deze weg?
    • De weg Kremselen kent een beperkte toegang alleen voor direct aanwonenden. Op dit moment wordt de weg veel als sluiproute gebruikt en is er veel te veel verkeer voor de smalle weg waardoor gevaarlijke situaties ontstaan. Wat wordt er gedaan om te voorkomen dat dit nog erger wordt met de komst van dit plan?
    • Zorg dat het verkeer in de Kremselen afneemt. Daarnaast het construeren van meerdere "sluizen" in de weg zodat de snelheid afneemt. Verkeersdrempels zijn niet de oplossing daar deze veel geluidsoverlast veroorzaken.
Groen
  • Het huidige plan ziet er heel mooi uit, uitgebalanceerd, woningen maar ook groen. Geef niet toe aan de druk om het hele perceel vol te bouwen. Hoeveel je bouwt, het is altijd te weinig. Het is zaak ervoor te zorgen dat dit gebied de komende jaren een mooie plek blijft om te wonen.
Verlichting
  • Lage lantaarnpalen in de wijk om lichtvervuiling tegen te gaan.

Participatie

  • Serieus op de vragen ingaan. Opnieuw overleg voeren met aanwonenden, nadat de aanpassingen zijn gemaakt. Er is onrust en die is begrijpelijk. Het gaat nu te veel met de losse pols.

5. Reacties op de opmerkingen

Algemeen

De gemeente is verheugd te zien dat zoveel mensen de moeite hebben genomen te reageren op het plan, en gaat haar best doen het plan zoveel mogelijk te verrijken met de vele suggesties. Het aanpassen zal echter wellicht voor de ene persoon als een verbetering worden gezien, maar tegelijkertijd voor de ander als een verslechtering. De gemeente houdt dan ook vooral de integraliteit van het plan in gedachten, waarbij het zo goed mogelijk dienen van het brede maatschappelijke belang voorop staat. Hoewel niet op iedere opmerking in detail wordt ingegaan in dit verslag, geven we in dit hoofdstuk wel een aantal reacties en verduidelijkingen.

Algemene ontwerpopzet

De groene opzet wordt door veel mensen gewaardeerd. Die was dan ook bewust in het plan opgenomen. De gemeente streeft op deze locatie naar een zachte overgang van het dorp Boskant naar het landelijke gebied. Een relatief hoog aandeel ruimte voor groen en water, en (overwegend) lagere woningbouwtypen passen daar goed bij. Dat willen we ook graag zo houden.

Woningtype

Een veelgehoorde reactie betreft de verhouding sociale huurwoningen versus (niet te dure) koopwoningen, en de mate waarin die woningen gaan voorzien in de behoefte van mensen uit Boskant. De woningen zijn primair bedoeld voor kleine gezinnen: 1- tot 2-persoonshuishoudens. Dit ter aanvulling op het programma dat al binnen zowel de gemeente als geheel als binnen Boskant in het bijzonder aanwezig is. En gezien de behoefte die zowel bij de corporatie als bij de gemeente gevoeld wordt.
Momenteel wordt ook gewerkte aan de planvoorbereiding van de Pastorietuin in Boskant. Daar zullen 12 sociale huurwoningen worden gerealiseerd.
Alle reacties tezamen genomen, wordt nu gewerkt aan een aangepast concept, waar meer koopwoningen worden gerealiseerd, ten koste van het aantal sociale huurwoningen.

Waterhuishouding / wadi

De bestaande wadi die enkele jaren geleden is aangelegd voor de woningen ‘Kremselen’ blijft gewoon bestaan. Evenals het groen en de wandelpaden daar omheen.
Een nieuwe wadi/ wateropvang wordt aangelegd voor de nieuwbouw op het Sportveld. Er wordt nog gestudeerd op een eventuele waterverbinding tussen deze twee systemen. Dat hangt als van o.a. de hydrologische aspecten en ecologie.

Hinderzones

Binnen het plan liggen twee hinderzones: die van het huidige sportveld en van de nabije boomkwekerij. Die worden eveneens in het ontwerp verwerkt.

Mobiliteit

Onverharde pad Eikenstraat

De Eikenstraat ten noorden van de projectlocatie is een onverhard pad. Het is de bedoeling dat dat zo blijft. De gemeente hecht waarde aan de onverharde paden binnen de gemeente, vanwege de uitstraling en het cultuurhistorische karakter.

Kremselen

In 1995 is besloten de Kremselen af te sluiten voor gemotoriseerd verkeer met uitzondering van bestemmingsverkeer. Momenteel wordt gekeken wat de beste oplossing voor de Kremselen.

Parkeren

Voor het aantal parkeerplaatsen dat nodig is, wordt voor de koopwoningen rekening gehouden met de Nota Parkeernormen Meierijstad, vastgesteld in 2018.
Voor de sociale huurwoningen wordt regelmatig ervaren dat de daarin genoemde parkeernorm te hoog is, waardoor aangelegde parkeerplaatsen onbenut blijven. Voor het Sportveld zal daarom voor de sociale huurwoningen naar alle waarschijnlijkheid gewerkt worden met een wat lagere norm. Voorwaarden hierbij zijn:

  • Voldoende parkeerruimte reserveren binnen het plan, om eventuele tekorten (mochten die later toch blijken) op te kunnen lossen;
  • Dat bij de planvoorbereiding wordt onderzocht (met vergelijkbare woningtypen in een vergelijkbare situatie) hoe laag de aangepaste norm zou kunnen zijn.

Wandelen

Gekeken wordt naar hoe wandelaars veilig van de nieuwbouwlocatie naar de rest van het dorp kunnen wandelen.

Energie en duurzaamheid

De modulaire woningen die zijn beoogd, moeten voldoen aan de BENG-norm.
Hoe nu verder
Momenteel wordt nog gewerkt aan een aantal (vervolg-)onderzoeken en wordt gekeken hoe het plan verbeterd kan worden. Het aangepaste plan zullen we weer met de bewoners van Boskant delen. In welke vorm we dat doen, wordt de komende weken verder uitgewerkt.

6. Samenvatting en conclusie

De gemeente Meierijstad wil samen met woningbouwcorporatie Woonmeij modulaire nieuwbouwwoningen realiseren op het voormalige Sportveld in Boskant. Het gaat zowel over koop- en sociale huurwoningen. De woningen worden omgeven door bestaand en nieuw groen. Het is een landelijke locatie die aansluit op de huidige bebouwing in Boskant. Parkeren wordt in het plan opgelost.

De omwonenden zijn per brief ingelicht over het voornemen om op het voormalige Sportveld in Boskant woningen te realiseren. Onderdeel van het proces is dat de gemeente in gesprek gaat met omwonenden. De omgevingsdialoog is hier onderdeel van.

NieuwBlauw heeft voor de omgevingsdialoog voor de gemeente Meierijstad een digitale omgeving (maptionnaire) ingericht. Tussen 28 februari en 13 maart 2024 konden respondenten de online omgevingsdialoog openen. De vragenlijst is beschikbaar geweest voor iedereen, de link heeft in de informatiebrief en op de website van de gemeente Meierijstad gestaan. Ook is de link in de plaatselijke krant verschenen. In het totaal hebben 115 respondenten de digitale omgevingsdialoog bezocht.

De omgevingsdialoog voor Sportveld bestond uit een planuitleg en een mogelijkheid om op het plan te reageren. Alle informatie was te vinden in de online omgevingsdialoog. De tekstuele toelichting op het ontwerp is opgenomen in paragraaf 3.1 van voorliggende verslag. Respondenten hadden de mogelijkheid op drie soorten icoontjes op de kaart te plaatsen en te voorzien van een opmerking. Met verplaatsbare icoontjes konden respondenten de volgende plekken op de kaart aanwijzen: positieve plek, verbeterplek en suggestie. Daarnaast konden respondenten een algemene opmerking achterlaten.

In het totaal zijn 165 reacties gegeven:

  • Er zijn in het totaal 45 positieve plekken op het ontwerp aangewezen. Bij 44 positieve plekken is een toelichting achtergelaten.
  • Er zijn in het totaal 49 verbeterplekken op het ontwerp aangewezen. Bij 49 verbeterplekken is een toelichting achtergelaten.
  • Er zijn in het totaal 45 suggesties op het ontwerp aangewezen. Bij 45 suggesties is een toelichting achtergelaten.
  • 26 respondenten hebben een algemene opmerking achtergelaten.

De positieve reacties hadden vooral betrekking op de groene opzet van het ontwerp, het autoluwe karakter en de ruime stedenbouwkundige visie op het plangebied. Ook het behoud en versterking van het groen wordt genoemd.
De negatieve reacties hadden veelal zorgen over de ongelijke mix aan sociale huur en koopwoningen, de (groene) afscheiding van het plangebied naar de omgeving en zorgen over de afwikkeling en overlast van het parkeren.
Suggesties hadden - naast punten die reeds genoemd zijn bij de positieve- en verbeterpunten - betrekking op de verkeersveiligheid rondom het plangebied en energieneutraal en klimaat adaptief bouwen.

Naar aanleiding van de gemaakte opmerkingen onderzoekt de gemeente de komende tijd hoe het plan verbeterd kan worden, al is op voorhand duidelijk dat niet iedereen hetzelfde waardeert of aangepast zou willen zien. Dat is mogelijk met de aangepaste versie ook het geval.

Bijlage 1 Mentimeter informatieavond

Vraag 1: Waar denkt u als eerste aan bij de woorden ‘modulaire woningen’?

  • Tijdelijk maar stiekem langdurig.
  • Zeg gewoon wat je bedoelt.
  • Woningen prefab en niet permanent.
  • Prefab woning.
  • Prefab woningen.
  • Goedkoop niet duurzaam tijdelijk.
  • Woningen die in bouwblokken worden neergezet.
  • Zegt nog niks.
  • Snel te bouwen huizen met prefab materialen.
  • Duurzaamheid, vrijstelling bestemmingsplan.
  • Tijdelijke woningen, verplaatsbare woningen, snelbouw woningen, uitwisselbare delen, stapelbaar.
  • Tijdelijke prefab woningen.
  • Prefab woningen.
  • Tijdelijke systeembouw.
  • Tijdelijke woning.
  • Prefab woningen.
  • Woningen die voorgefabriceerd zijn.
  • Kleine kant en klaar woningen die in de vorm van bouwpakketten worden aangeleverd.
  • Daar wil ik wonen / duurzaam wooncomfort.
  • Prefab woningen uit de fabriek met beperkt woonoppervlak.
  • Prefab woningen.
  • Overal hetzelfde.
  • Woningen waarvan de gedeeltes van te voren gemaakt zijn, zodat ze snel in elkaar gezet kunnen worden.
  • Snel bouwen, goedkoop.
  • Niet doen.
  • Prefab, snel en goedkoop.
  • Strategische keuzen om dit woord te gebruiken.
  • Prefab woningen.
  • Snel, eenvormig.
  • Prefab, snel kleinere woningen.
  • Woningen met vaste repeterende vaste maten. Meestal prefab.
  • Snel bouwen. Vaste ontwerpen. Goedkoop.
  • Prefab woningen.
  • Moderne woningen.
  • Versnelde woning markt zodat nieuwkomers sneller huizen kunnen kopen.
  • Woningen die voor gefabriceerd zijn en daardoor heel snel gerealiseerd kunnen worden.
  • Sociale huur.
  • Woningen opgebouwd uit modules.
  • Kant en klaar woningen die in de fabriek zijn gebouwd.
  • Verplaatsbare woningen die ook uit te breiden zijn met extra ruimte modules.
  • Duurzaam, energieneutraal, soort van lego blokjes stapelen. Brandveiligheid. Warmte in zomer.
  • Snelle woningbouw.
  • Snelle bouw.
  • Kant en klare woningen.
  • Prefab.
  • Einde buitengebied.
  • Stapelbare woningen.
  • Goedkope uitstraling.
  • Snel en goed. Permanent. 50 jaar levensduur.
  • Koffie.
  • Goedkoop en snel.
  • Kant en klaar vanuit fabriek.
  • V.
  • G.
  • Alles. Super tof.
  • Wanneer gereed.
  • Is bouwer al bekend.

Vraag 2: Wat spreekt u aan in het plan?

  • Groene omgeving.
  • Veel groen.
  • Helemaal niets.
  • Koffie.
  • Speels en leuk ontwerp.
  • Mooie indeling.
  • Het vele groen en duurzaam bouwen.
  • Mooi beschut geen impact op de omgeving.
  • Vriendelijk, kleinschalig, laagbouw.
  • Mooie vormgegevens. In kleine clusters van vier.
  • Tja, we zien de indeling maar nog niet de woningen zelf. Daarom zegt het nog niks.
  • Helemaal dikke prima.
  • Kleinschaligheid, veel groen.
  • Mooie omgeving voor mooie woningen.
  • Mooi plan in eerste opzicht.
  • Leuk op papier maar niets over de impact op omgeving en dorp.
  • Meer woningen bouwen.
  • Waarom niet omhoog? Dan meer woningen.
  • Hoe groot zijn de kavels van de koopwoningen?
  • Erg veel ruimte, kunnen meer woningen in.
  • Mooi plan.
  • Hoelang moet je ingeschreven staan om kans te maken op een sociale huurwoning.
  • Heel fijn die snelheid.
  • Gas erop. 
  • Veel groen. Goed dat er koopwoningen zijn. Centralisering blik.
  • Veel groen, kleinschalig.
  • Veel groen, veel sociaal, onduidelijkheid over koop.
  • Graag efficiënter delen, zodat je meer woningen kwijt kan.
  • Super gaaf. Wanneer gereed?
  • Laagbouw.
  • Divers sociaal en levensloop.
  • Mooi plan, maar ik ben niet blij met parkeerplaatsen tegen onze achtertuin. Komt daar een soort van afscherming?
  • Allemaal heel mooi, maar qua indeling totaal niet efficiënt.
  • Veel groen, mooi ontwerp.
  • Dicht bij kern Boskant zodat buitengebied gespaard wordt.
  • Mooi plan maar de bouwblokken van de huurwoningen zijn groter dan de koopwoningen of het plan. Is hier een reden voor?
  • Veel groen, jammer weinig koop.
  • Ziet er best leuk uit.
  • Meer koopwoningen.
  • Missen de tekeningen van de woningen.
  • Sommige internetplaatjes van de woningen zijn mooi, de grote bouwkubussen niet. Totaal andere stijl, wat zegt dit nou?
  • Planning, wanneer wordt dit gerealiseerd.
  • Laagbouw wat past in het landelijk gebied.
  • Klimaatmaatregelen?
  • Meer koop.
  • Mengen koop met huur. Parkeren aan de noordkant.
  • Keuze bewoners dat het geen "buurtje" word.
  • Laagbouw. Liever nog een laag bouwen. Alleen wel jammer van al het parkeren centraal doe dit aan de noordkant.

Vraag 3: Zijn er suggesties of verbeterpunten voor het plan?

  • Meer koopwoningen.
  • Wie gaat het onderhoud doen van het groen.
  • Niks aan veranderen.
  • Meer koopwoningen.
  • Minder sociale huur, meer levensloop bestendige woningen.
  • Losse berging.
  • Bij een paar laagjes erop? Dan meer woningen en goedkoper.
  • Nie lullen maar bouwen.
  • Laagje erop. Dan goedkoper en meer w.
  • Hoezo meer?
  • Minder.
  • Minder woningen.
  • Goedkoper.
  • Laagbouw, past bij buitengebied.
  • Niet in te hoge dichtheid bouwen.
  • Geen woningen.
  • Planning.
  • Bij elke woning een berging.
  • Gemeenschappelijke fietsenstalling.
  • Meer woningen voor starters, koopwoningen.
  • En waar gaat het verkeer over?
  • Kijk links boven.
  • Laagbouw met een landelijk karakter.
  • Parkeren bij de woningen.
  • Nie lullen maar bouwen.
  • Hou het laag!!! Passend bij de rand van het dorp.
  • Niet lullen maar bouwen.
  • Niet lullen maar bouwen.
  • Meer koop woningen.
  • Geen lichtkermis.
  • Ja. Meer bouwvolume. Huur van levensloop. Ipv koop.
  • Houden zo.
  • Niet meer woningen in het plan.
  • Grotere koop woningen.
  • Ik zag in een foto een windmolen word hier ook gebruik van gemaakt.

Bijlage 2: Ingezonden reactie

 Notitie “Commentaar op het plan voor woningbouw op het voormalige sportveld Boskant”

ing. Adriaan Kragten, Sint-Oedenrode, 1-3-2024, herzien 16-4-2024

Commentaar op het plan voor woningbouw op het voormalige sportveld Boskant

Op 28-2-2024 heb ik de informatieavond over woningbouw op het voormalige sportveld Boskant bijgewoond. Het plan bestaat uit twee delen, een deel met 18 huurwoningen die in een cirkel geplaatst zijn en een deel met 7 koopwoningen, totaal dus 25 woningen (zie www.meierijstad.nl/omgevingsdialoog en www.meierijstad.nl/omgevingsdialoog).
Op het deel met de 7 koopwoningen heb ik alleen als commentaar dat ik graag zou zien dat ook gekeken wordt of deze woningen geschikt gemaakt kunnen worden voor dubbele bewoning. Ik heb diverse huizen ontworpen die geschikt zijn voor dubbele of zelfs meervoudige bewoning. Deze huizen worden beschreven in notities die te vinden zijn op mijn website: www.kdwindturbines.nl onder het menu “No wind energy”. De titels van deze notities zijn: “Ideeën over een door garages geschakeld huis plus drie studio’s”, “Ideeën over een half vrijstaand huis plus studio” en “Ideeën over een levensloopbestendig vrijstaand huis geschikt voor driedubbele bewoning”.